Move-in ready semi with garage, driveway parking and low flood risk.
Chain free three-bedroom semi-detached house
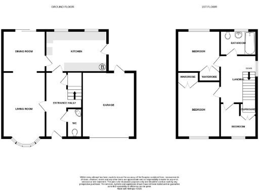
This three-bedroom semi-detached house sits in a quiet cul-de-sac on the outskirts of Deal town centre, offering straightforward family living and easy access to local amenities. The layout includes an open-plan living/dining area, a practical kitchen, separate cloakroom, and a first-floor family bathroom. There is a single garage, wide driveway parking and both front and rear gardens — a useful combination for family life and storage.
The property is freehold and offered chain free, so it is ready for a quick move. Built around the turn of the century with cavity walls and double glazing installed before 2002, the home is functional but likely benefits from cosmetic updating rather than structural work. Broadband and mobile signal are strong, and local primary schools have good Ofsted ratings; secondary provision in the area is mixed.
Practical strengths are clear: off-street parking for multiple cars, usable garden space, and a mid-market size (about 1,023 sq ft) that suits growing families or buy-to-let purchasers. Buyers should note the house presents as a typical late‑20th‑century suburban home and will probably need some redecoration and modernising to reach premium levels. Council tax is moderate and flood risk is very low.
3 bedroom semi-detached house for sale in Rectory Road, Deal, CT14 — £325,000 • 3 bed • 2 bath • 732 ft²
3 bedroom semi-detached house for sale in Redsull Avenue, Deal, CT14 — £269,950 • 3 bed • 1 bath • 797 ft²
3 bedroom terraced house for sale in Matthews Close, Deal, Kent, CT14 — £280,000 • 3 bed • 1 bath • 915 ft²
3 bedroom semi-detached house for sale in Godwyn Road, Deal, Kent, CT14 — £325,000 • 3 bed • 1 bath • 673 ft²
3 bedroom semi-detached house for sale in Hyton Drive, Deal, CT14 — £359,950 • 3 bed • 3 bath • 926 ft²
3 bedroom semi-detached house for sale in Church Path, Kent, CT14 — £270,000 • 3 bed • 1 bath • 902 ft²






































