Compact first-floor one-bedroom, long lease and parking — ideal for first-time buyers or investors.
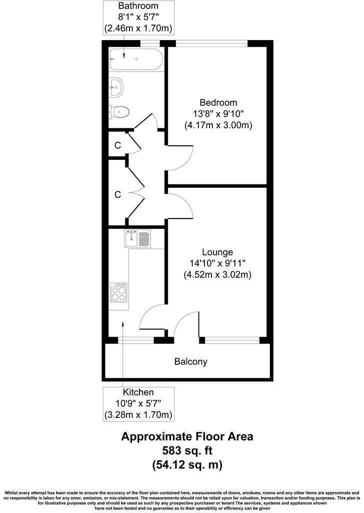
First-floor one-bedroom with balcony overlooking communal gardens
Long lease (109 years remaining) and chain-free sale
Resident off-street parking and well-kept communal grounds
UPVC double glazing; electric storage heating
Service charge approx. £2,796/year; ground rent £100/year
Compact rooms — approximately 583 sq ft, average-sized accommodation
Council Tax Band A — low local running costs
High local crime rating and area deprivation — consider impact on resale/rental
This first-floor, one-bedroom apartment in central Sutton Coldfield offers compact, well-planned accommodation ideal for a first purchase or buy-to-let. The flat includes a double bedroom, bathroom with shower, separate kitchen with oven and hob, and a living room opening onto a balcony that overlooks mature communal gardens. Resident off-street parking and pleasant communal grounds provide useful outdoor space and privacy.
Practical features include UPVC double glazing, electric storage heating and a long lease (109 years remaining). Running costs are attractive with Council Tax Band A, but note the property is leasehold with a ground rent of £100 and an average service charge of about £2,796 per year — factor these into affordability calculations. The apartment is being sold chain-free for a straightforward purchase.
The location is a key strength: town-centre convenience, easy access to Sutton Park, local shops and good transport links. However, prospective buyers should be aware the surrounding area records a high crime score and is classed as deprived, which may affect resale or rental demand. The flat is compact and likely to appeal to single professionals, first-time buyers or investors rather than families seeking larger accommodation.
1 bedroom flat for sale in Rectory Road, Sutton Coldfield, B75 — £130,000 • 1 bed • 1 bath • 410 ft²
1 bedroom apartment for sale in Manor Road, Sutton Coldfield, B73 — £130,000 • 1 bed • 1 bath • 582 ft²
1 bedroom apartment for sale in Rectory Road, Sutton Coldfield, B75 — £120,000 • 1 bed • 1 bath • 410 ft²
2 bedroom flat for sale in Warwick Road, Sutton Coldfield, West Midlands, B73 — £150,000 • 2 bed • 1 bath • 581 ft²
2 bedroom apartment for sale in Caversham Place, Sutton Coldfield, B73 — £210,000 • 2 bed • 1 bath • 700 ft²
1 bedroom apartment for sale in Garrard Gardens, Sutton Coldfield, B73 — £160,000 • 1 bed • 1 bath • 563 ft²


















































