PA20 0NN - 4 bedroom flat for sale in Ardbeg Road, Isle Of Bute, Butes…

View on Property Piper

4 bedroom flat for sale in Ardbeg Road, Isle Of Bute, Buteshire, PA20

Summary - FLAT 1, PARKVIEW 74A, ARDBEG ROAD, ISLE OF BUTE, ROTHESAY PA20 0NN

4 bed 1 bath Flat

**Standout Features:**
- Bright and spacious four-bedroom flat
- Partially renovated with modern kitchen
- Partial sea views
- Ideally located near local shops, restaurants, and public transport
- Access to shared drying green and exclusive shed
- Council Tax Band B - affordable living costs
- Close to recreational amenities and facilities (cinema, parks, golf courses)

**Concerns:**
- Average mobile signal and broadband speeds
- Located in a deprived area with potential socioeconomic challenges

Embrace a serene lifestyle in this recently renovated four-bedroom flat, perfect for families or investors. Enjoy partial sea views and ample living space across its eight rooms. This home is in beautiful, walk-in condition, featuring a modern kitchen equipped with integrated appliances and a bright lounge overlooking the quiet street. With a shared drying green and exclusive storage shed, outdoor utility meets comfort.

Located just a stone's throw from local shops and restaurants and near public transport, the property invites easy access to the vibrant community and stunning Isle of Bute. While the area may have socioeconomic challenges, the home is a solid investment with access to recreational facilities like parks, golf courses, and hiking trails, catering to active lifestyles. This charming flat is an exceptional opportunity that’s not to be missed; make it yours today before it's gone!

Property Details

Brochure Descriptions

Image Descriptions

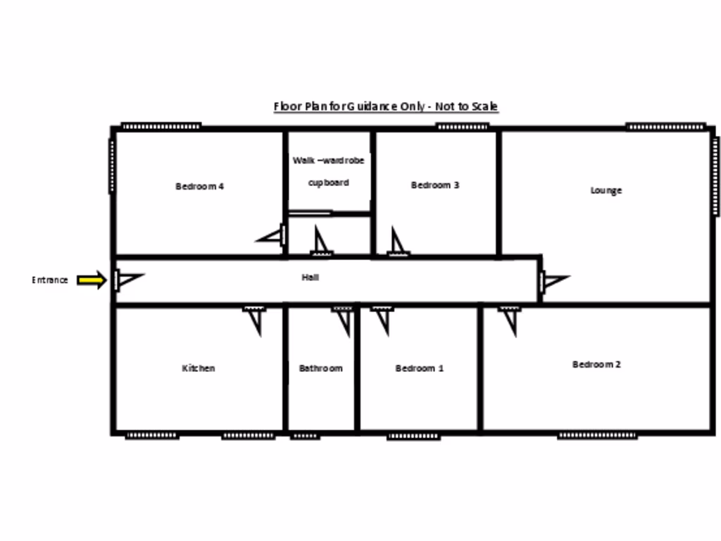
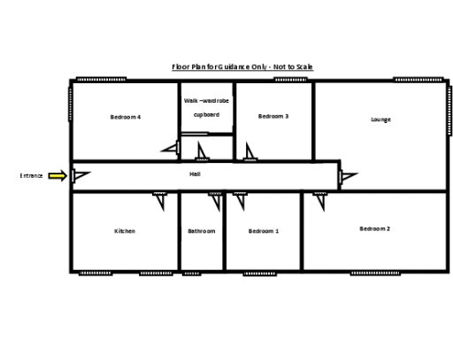
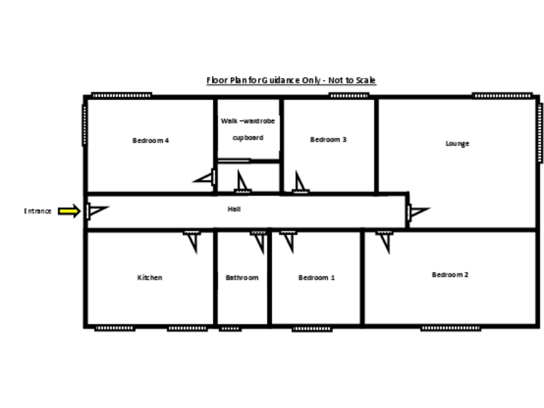
Floorplan Description

Rooms

Textual Property Features

Detected Visual Features

Nearest Bars And Restaurants

,,,,}

Nearest General Shops

,,}

Nearest Grocery shops

,,}

Nearest Supermarkets

,,}

Nearest Religious buildings

,,}

Nearest Medical buildings

,,,}

Nearest Leisure Facilities

,,,,}

Nearest Tourist attractions

,,}

Nearest Train stations

,,,,}

Nearest Bus stations and stops

,,,,}

Nearest Hotels

,,}

Tags

Local Market Stats

AirBnB Data

Similar Properties

Meta

High Res Images

Compatible Images

Low res Images

Thumbnails

Raw Images

High Res Floorplan Images

Compatible Floorplan Images

Low res Floorplan Images

FloorplanImages Thumbnail

Raw Floorplan Images