**Standout Features:**
- **Location:** Idyllic coastal building plot with breathtaking panoramic views of the sea and surrounding countryside.
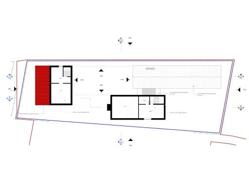
- **Planning Permission:** Full planning permission granted for a 5-bedroom detached home, boathouse, and walled garden.
- **Utilities:** Electricity onsite, mains water available nearby; sewage treatment plant required by the purchaser.
- **Amenities:** Mooring access, trailer launch, and storage rights from Milton Harbour Master.
- **Connectivity:** Included in the Scotland R100 Superfast Broadband Plan for enhanced internet access by 2028.
Set in the picturesque setting of Caolis on the Isle of Tiree, this large plot offers approximately 0.3 acres of prime building opportunity. With full planning permission secured for a beautifully designed, architect-approved 5-bedroom residence by Denizen Works, you can build your dream coastal home alongside a boathouse and a serene walled garden. The property’s unique location boasts spectacular sea views and is well connected to local amenities—only a short drive from Tiree Lodge Hotel and Scarinish town center.
While there are some requirements for establishing drainage through a septic tank, the site already has electricity, and mains water is within reach. The area is enriched with natural landscapes, making it perfect for those seeking tranquility and outdoor activities. However, please note that the ground in front of the plot is non-developable but serves as essential access. This gem of a plot is ideal for investors or families looking to settle in a peaceful, rural setting, making it a rare find in today’s market. Don’t miss this opportunity to craft your own piece of paradise in the Hebrides!
Plot for sale in Plot South of Machair House at Scarinish, Isle of Tiree, PA77 6UH, PA77 — £90,000 • 1 bed • 1 bath • 8712 ft²
Plot for sale in Plot at Croft 1, Cornaigmore, Isle Of Tiree, PA77 6XA, PA77 — £115,000 • 1 bed • 1 bath • 5227 ft²
Detached house for sale in Ballyhaugh and Land (Lot 1), Ballyhaugh, Isle Of Coll, PA78 — £755,000 • 1 bed • 1 bath • 10275 ft²
3 bedroom character property for sale in Millhouse Hostel and Farmhouse, Isle Of Tiree, Argyllshire, PA77 — £490,000 • 3 bed • 3 bath • 1184 ft²
6 bedroom character property for sale in Kilmaluaig, Isle Of Tiree, Argyll and Bute, PA77 — £750,000 • 6 bed • 4 bath • 2572 ft²
4 bedroom detached house for sale in White House, Cornaigbeg, Isle of Tiree, Argyll and Bute, PA77 — £425,000 • 4 bed • 3 bath • 2700 ft²






































































































