**Standout Features:**
- Newly renovated three-bedroom terraced house
- Modern living room with wood-burning stove
- Stylish fitted kitchen with built-in appliances
- Enclosed rear yard and outbuildings
- Conveniently located near Skipton town center, Aireville Park, and the canal
- Low council tax band (Band A)
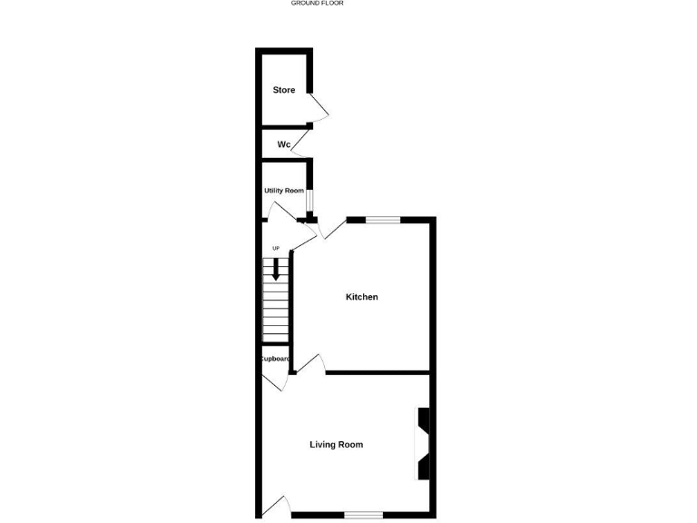
This beautifully improved three-bedroom stone terraced home is ideally located in a peaceful, popular area just off Broughton Road, only a short stroll from the vibrant heart of Skipton. With an overall size of 453 sq ft, this cozy property features a modern living room complete with a charming wood-burning stove and a re-fitted dining kitchen equipped with high-quality glossy units and integrated appliances.
Upstairs, you’ll find three comfortable bedrooms and a chic, recently renovated bathroom with both handheld and overhead rainfall showers. Outside, the enclosed yard offers a private space for relaxation, complemented by adjacent stone outbuildings for extra storage or potential utility.
The home is perfect for first-time buyers or families seeking an affordable property in a town consistently praised as one of the best places to live in the UK. With excellent schooling options and a quick connection to public transport, this property offers security, comfort, and a wonderful opportunity to immerse oneself in Skipton's welcoming community. Don’t miss out on this competitively priced gem in a thriving market; it’s a rare find that won’t last long!



































