Compact, well-located two-bed with garden and commuter links.
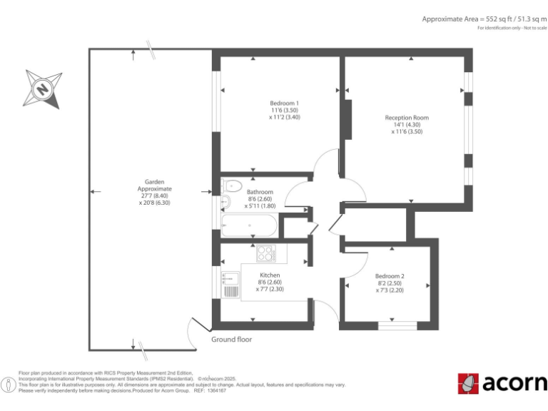
Ground-floor two-bedroom maisonette, bright rooms
Private rear garden and patio, useful outdoor space
About 552 sq ft — compact, efficient layout
88 years remaining on lease; leasehold tenure
Ground rent £250 per year; no service charge stated
Built 1930s–40s, solid walls; insulation upgrades likely needed
Modern gloss kitchen but overall scope for refurbishment
On-street parking unrestricted; possible front-drive conversion (consents needed)
A bright ground-floor maisonette in a quiet Bexleyheath cul-de-sac, offering a practical two-bedroom layout and a private rear garden. The well-presented interior benefits from abundant natural light, a modern fitted kitchen and a tidy bathroom, making it comfortable to move into while still offering sensible scope to personalise.
At about 552 sq ft, the flat is compact and best suited to first-time buyers or investors seeking a low-maintenance home close to local amenities. Commuters will appreciate easy access to Bexleyheath and Abbey Wood stations (Elizabeth Line) and quick road links to the A2 and M25. Broadband speeds and mobile signal are strong, and the area records very low crime.
Important leasehold facts are clear: 88 years remain on the lease and ground rent is £250 per year. There is no listed service charge. The building dates from the 1930s–40s with solid brick walls (no added cavity insulation assumed) and double glazing fitted before 2002, so some energy-improvement work could be considered.
Outside, the private rear garden and patio are a genuine plus for outdoor space, and there is scope—subject to the usual consents—to convert the front garden into off-street parking. On-street parking is currently unrestricted. Overall, this maisonette represents a tidy, well-located home with straightforward potential for value-adding improvements.
2 bedroom ground floor maisonette for sale in Melanie Close, Bexleyheath, DA7 — £325,000 • 2 bed • 1 bath • 574 ft²
2 bedroom maisonette for sale in Eversley Avenue, Bexleyheath, Kent, DA7 — £265,000 • 2 bed • 1 bath • 464 ft²
2 bedroom maisonette for sale in Bristow Road, Bexleyheath, DA7 — £300,000 • 2 bed • 1 bath • 672 ft²
2 bedroom maisonette for sale in Green Vale, Bexleyheath, DA6 — £265,000 • 2 bed • 1 bath
1 bedroom maisonette for sale in Pickford Lane, Bexleyheath, DA7 — £250,000 • 1 bed • 1 bath • 541 ft²
2 bedroom maisonette for sale in Three Corners, Bexleyheath, DA7 — £280,000 • 2 bed • 1 bath • 560 ft²


























































