**Standout Features:**
- Leasehold term of 999 years (from January 1, 2022)
- Charming Georgian-style, stone facade
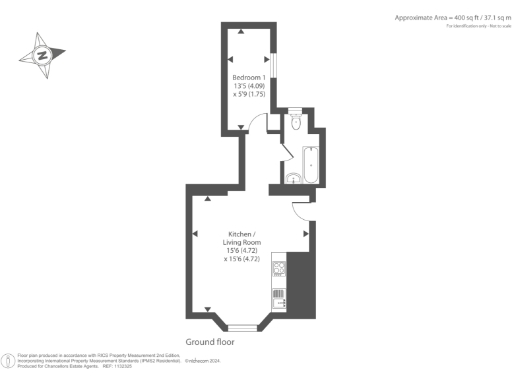
- Semi-detached one-bedroom apartment with 344 sq. ft.
- Double glazing installed after 2002
- Chain-free sale for quick purchasing
- Extremely affluent and self-sufficient retirement locality
- Excellent mobile signal and fast broadband speeds
**Overview:**
Discover this quaint one-bedroom flat set within a picturesque Georgian building in central Witney. At a competitive price of £180,000, this cozy 344 sq. ft. residence offers a unique blend of historical character with modern comforts. Featuring double glazing and a rustic outdoor space adorned with greenery, this property presents excellent charm and the promise of revitalization.
The location ensures convenience, with various amenities at your doorstep including shops, cafés, and health services. It's also close to several well-rated schools, making it an optimal choice for families or first-time buyers. However, potential buyers should note that the properties are built with assumed no insulation, which may require additional energy efficiency measures.
This is a rare opportunity to own a leasehold property with substantial time remaining on the lease in a well-heeled area characterized by highly qualified professionals. Don’t miss out on viewing this appealing flat; it's likely to attract significant interest in this sought-after locale.
1 bedroom flat for sale in Witney, Oxfordshire, OX28 — £210,000 • 1 bed • 1 bath • 624 ft²
1 bedroom flat for sale in Witney, Oxfordshire, OX28 — £150,000 • 1 bed • 1 bath • 409 ft²
2 bedroom flat for sale in Witney, Oxfordshire, OX28 — £260,000 • 2 bed • 1 bath • 861 ft²
1 bedroom flat for sale in Witney, Oxfordshire, OX28 — £230,000 • 1 bed • 1 bath • 473 ft²
1 bedroom retirement property for sale in Witney, Oxfordshire, OX28 — £120,000 • 1 bed • 1 bath • 511 ft²
1 bedroom block of apartments for sale in Witney, Oxfordshire, OX28 — £130,000 • 1 bed • 1 bath • 495 ft²


























































































