Contemporary rural home with spacious living and strong energy credentials.
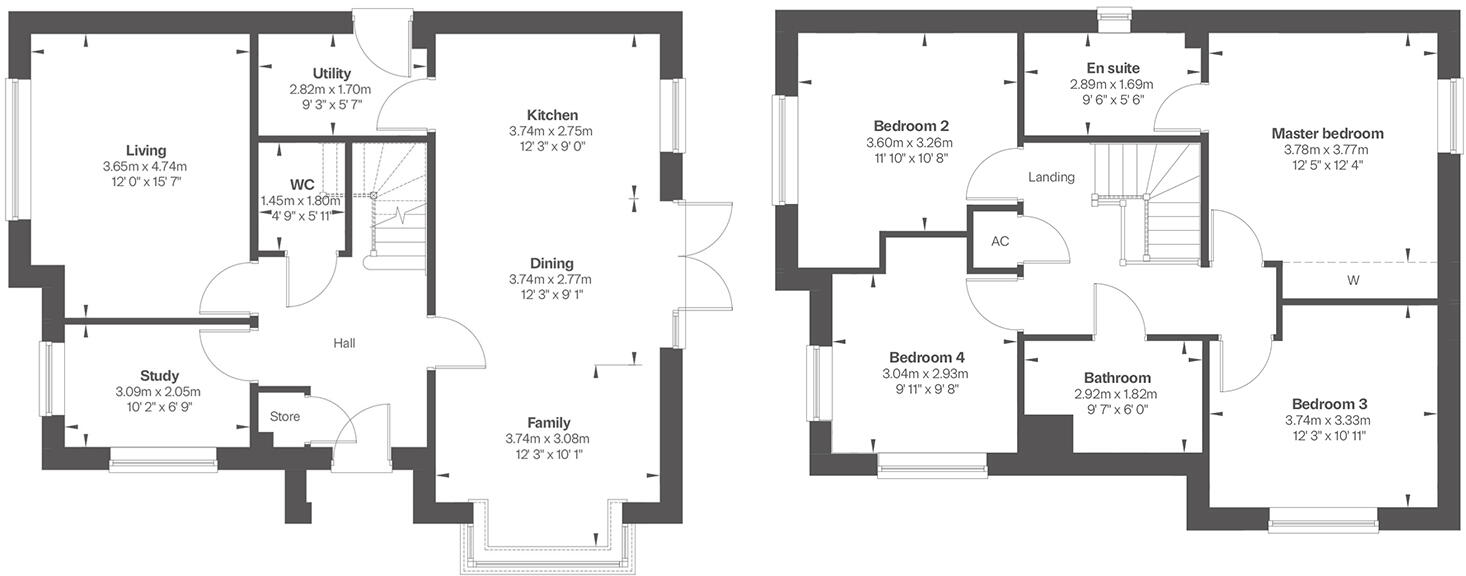
- Open-plan kitchen, dining and family room with French doors to garden
- Separate living room plus dedicated study for home working
- Solar PV panels fitted; EV charger provision included
- Master bedroom with en suite and front feature bay window
- Large private plot with off-street driveway parking
- New-build warranties included; energy-efficient, expected high rating
- Service charge £288.67 per year; estate management fee TBC
- Council Tax band pending; hamlet location means limited immediate services
This newly built four-bedroom detached house offers 1,626 sq ft of contemporary living arranged around a central staircase. An open-plan kitchen, dining and family area with French doors connects directly to a large rear garden, while a separate living room and study give flexible space for working and relaxing. The master bedroom benefits from an en suite and a feature bay window at the front adds kerb appeal.
Built to current new-home standards, the property includes Solar PV panels, EV charger provision and comes with the usual new-build warranties for structure and fixtures. Off-street driveway parking and a large private plot give practical outdoor space, and there is no recorded flood risk for the area.
Set on a quiet no-through road at the edge of Bomere Heath, the location offers a calm, semi-rural feel with local amenities including a primary school, village hall, pub and sports facilities. Good transport links to Shrewsbury, Oswestry and Telford make commuting feasible while excellent mobile and fast broadband support home working.
Buyers should note an annual service charge of £288.67 and an estate/management charge listed as TBC; Council Tax band is also to be confirmed. The settlement is classed as a hamlet/isolated location, so some services are village-based rather than immediate nearby.
4 bedroom detached house for sale in Willow Rise, Bomere Heath, Shrewsbury, Shropshire, SY4 — £540,000 • 4 bed • 2 bath • 1626 ft²
4 bedroom detached house for sale in Willow Rise, Bomere Heath, Shrewsbury, Shropshire, SY4 — £482,500 • 4 bed • 2 bath • 1425 ft²
4 bedroom detached house for sale in Willow Rise, Bomere Heath, Shrewsbury, Shropshire, SY4 — £479,950 • 4 bed • 2 bath • 1447 ft²
4 bedroom detached house for sale in Plot 12, The Gardener, Willow Rise, Bomere Heath, Shrewsbury, SY4 — £455,000 • 4 bed • 2 bath • 1068 ft²
2 bedroom detached bungalow for sale in Plot 9, The Benson, Willow Rise, Bomere Heath, Shrewsbury, SY4 — £370,000 • 2 bed • 1 bath • 706 ft²
3 bedroom semi-detached house for sale in Willow Rise, Bomere Heath, Shrewsbury, Shrosphire, SY4 — £340,000 • 3 bed • 2 bath • 387 ft²






















