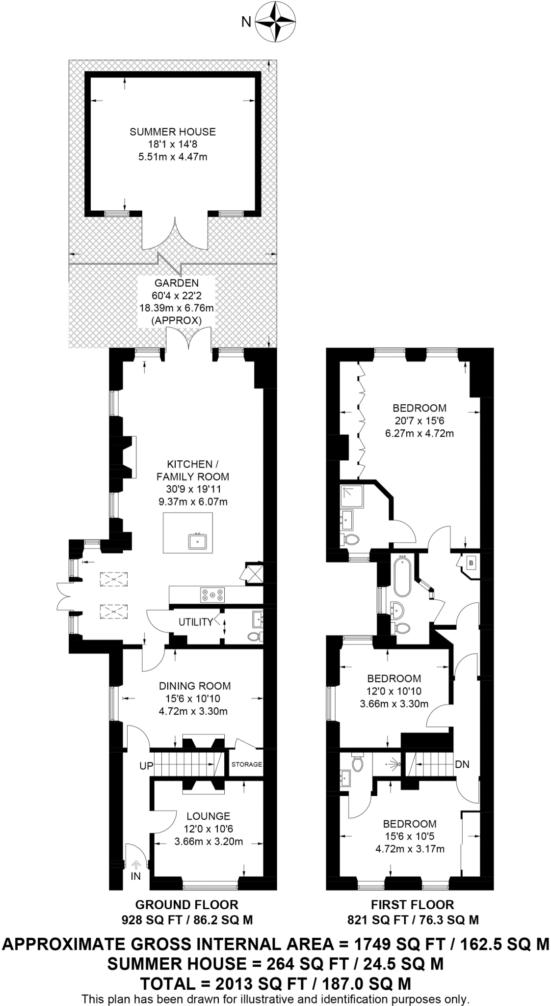
Large extended 3-bed Victorian home fronting National Trust common land..
- Substantially extended Victorian semi-detached with period features
- Huge open-plan kitchen/living room with island and log burner
- Three double bedrooms; main bedroom with ensuite and built-in wardrobes
- Two reception rooms, one with a feature fireplace
- Very large plot with garden and summer-house/studio
- Fronts picturesque National Trust common land (semi-rural feel)
- Freehold and offered with no onward chain
- Solid brick walls assumed uninsulated; double-glazing install date unknown
Substantially extended and full of period character, this generous three-double-bedroom semi-detached home fronts picturesque National Trust common land in a sought-after Maidenhead setting. The ground floor centres on a huge open-plan kitchen/living space with a central island and log burner, perfect for everyday family life and entertaining. Two further reception rooms — one with a feature fireplace — give flexibility for a formal dining room, home office or playroom.
The main bedroom is large, includes built-in wardrobes and an ensuite; a second bedroom also has an ensuite shower and there is a third double bedroom, giving three bathrooms in total. Outside, the very large plot includes a good-size garden and a summer-house/studio that adds hobby or home-office potential. The property is freehold and offered with no onward chain, allowing a quicker move.
Practical points to note: the house was built between 1930–1949 with solid brick walls (assumed to lack cavity insulation) and the double-glazing install date is unknown — buyers may wish to factor possible retrofit insulation or window works into plans. Mobile signal is average. The location benefits from fast broadband, very low crime, nearby good and outstanding schools, and straightforward road links to the A404 and M4.
This home suits families seeking generous, characterful living space in a semi-rural yet well-connected spot. It also offers scope for buyers who want to modernise building fabric (insulation/windows) to improve energy performance and running costs.
3 bedroom semi-detached house for sale in Furze Platt Road, Maidenhead, SL6 — £795,000 • 3 bed • 3 bath • 2013 ft²
3 bedroom semi-detached house for sale in Gordon Road, Maidenhead, SL6 — £679,950 • 3 bed • 1 bath • 1103 ft²
3 bedroom detached house for sale in Belmont Road, Maidenhead, SL6 — £850,000 • 3 bed • 1 bath • 1386 ft²
3 bedroom semi-detached house for sale in Blackamoor Lane, Maidenhead, SL6 — £650,000 • 3 bed • 2 bath • 1126 ft²
3 bedroom semi-detached house for sale in Courthouse Road, Maidenhead, Berkshire, SL6 — £725,000 • 3 bed • 1 bath • 1252 ft²
4 bedroom semi-detached house for sale in Highfield Road, Maidenhead, SL6 5DF, SL6 — £700,000 • 4 bed • 2 bath • 1435 ft²






























































