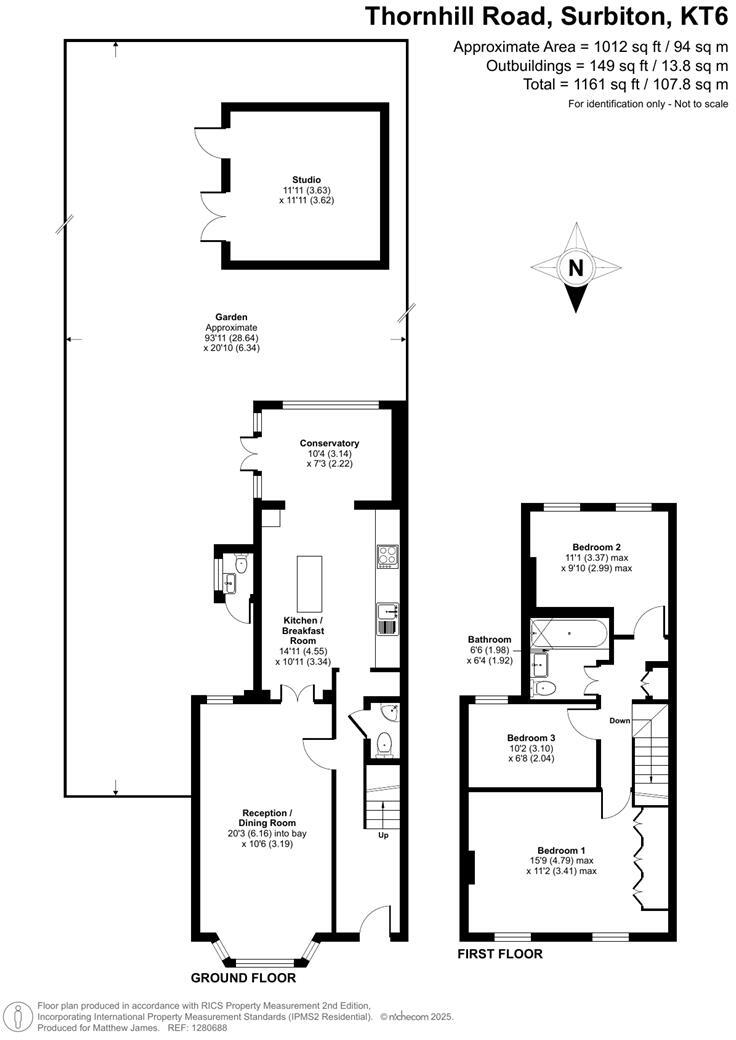
Spacious family house with large garden and studio, close to Surbiton station.
Large bay-front living room with lots of natural light
Modern fitted kitchen with island and conservatory dining area
Three good-sized bedrooms; master with fitted wardrobes
Large private garden plus studio/garden room and outside WC
Single family bathroom only; one WC downstairs
Cavity walls assumed uninsulated — upgrade potential
Council tax band above average
Short walk to Surbiton station and local high street
A spacious three-bedroom semi-detached home on Thornhill Road offering generous living space and a large private garden ideal for family life. The ground floor features a very large bay-front living room, a modern fitted kitchen with a sociable island, and a conservatory/dining room that opens directly onto the secluded garden and patio. A handy ground-floor WC and welcoming entrance hall complete the layout downstairs.
Upstairs the property has a generous master bedroom with fitted wardrobes plus two further good-sized bedrooms and a single white bathroom suite with shower-over-bath. Gas central heating, mains gas boiler and double glazing provide everyday comfort. The garden includes a separate studio/garden room and an outside WC, useful for home working, hobbies or storage.
Practical considerations: the house dates from the interwar period (c.1900–1929) and has cavity walls with no fitted insulation (assumed), so there is potential to improve thermal performance and reduce running costs. Council tax is above average for the area and there is only one family bathroom, which may be a constraint for larger households. Overall the property is well placed for Surbiton mainline station, local high street amenities and several well-regarded schools, making it a practical choice for families wanting space close to transport links.
3 bedroom semi-detached house for sale in Thornhill Road, Surbiton, KT6 — £699,950 • 3 bed • 1 bath • 1131 ft²
3 bedroom semi-detached house for sale in Hamilton Avenue, Surbiton, KT6 — £699,950 • 3 bed • 1 bath • 1025 ft²
3 bedroom semi-detached house for sale in Bond Road, Surbiton, KT6 — £780,000 • 3 bed • 1 bath • 1575 ft²
3 bedroom detached house for sale in Tolworth Park Road, Surbiton, United Kingdom, KT6 — £725,000 • 3 bed • 1 bath • 1260 ft²
3 bedroom semi-detached house for sale in Worthington Road, Surbiton, KT6 — £725,000 • 3 bed • 1 bath • 1319 ft²
4 bedroom detached house for sale in Bond Road, Surbiton, KT6 — £915,000 • 4 bed • 2 bath • 1555 ft²






































































