PL28 8LE - 4 bed contemporary coastal meraki home in North Cornwall, P…

View on Property Piper

4 bedroom detached house for sale in Impressive New Home, Nr. Padstow, Cornwall, PL28

Summary - Impressive New Home, Nr. Padstow, Cornwall PL28 8LE

4 bed 6 bath Detached

Spacious new-build home with estuary views and Net Zero specification.
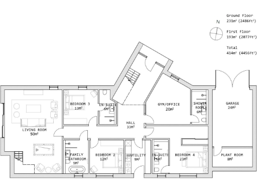
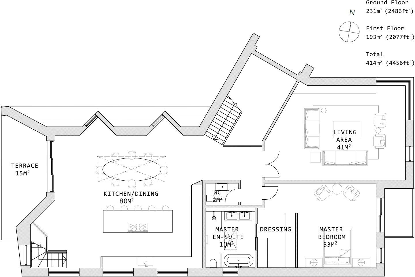
About 4,456 sq ft of living space across multiple storeys
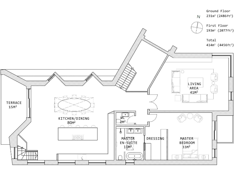
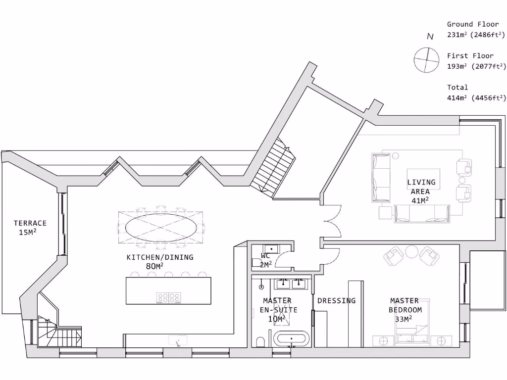
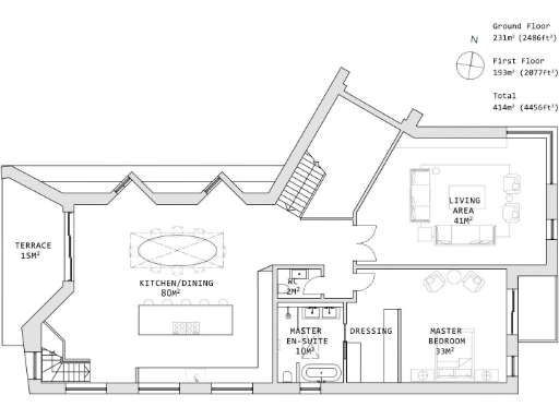
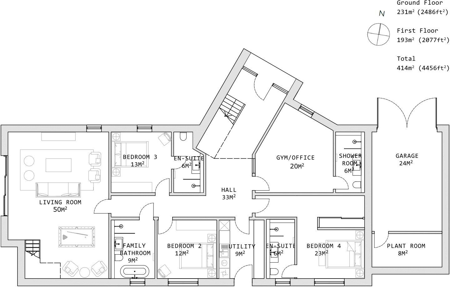
Set above the Camel Estuary, this newly built four-bedroom detached home offers expansive living across about 4,456 sq ft, designed to capture coastal views to both the north-east and north-west. Large glazed openings, a glass roof over the kitchen/diner and a principal bedroom balcony frame sunsets and estuary panoramas, while extensive landscaped lawns and a gated curved drive provide privacy and generous outdoor space.

The specification is focused on low running costs and modern comfort: triple glazing, underfloor heating fed by an air-source heat pump, solar panels with battery storage, acoustic floor treatments and CAT6 wiring throughout. Internally the layout centres on family life — an open-plan kitchen/diner, large living room, a ground-floor family room and flexible multi-purpose space that could serve as a home office, gym or fifth bedroom. Built-in CCTV, whole-home audio and smart lighting are included.

Practical points are clear: completion is estimated for December 2025 and the property is under construction, so buyers should allow for possible build delays. External adaptations such as outbuildings or a swimming pool are possible but would require developer approval and any necessary permissions. Council tax banding is not yet determined.

This home suits buyers seeking a spacious, low‑energy contemporary house in a quiet hamlet close to Padstow and several beaches. Early purchasers can influence some internal finishes, offering an opportunity to personalise kitchens, bathrooms and flooring before completion.

Property Details

Image Descriptions

Floorplan Description

Rooms

Textual Property Features

Target Audience

AI Tags

Detected Visual Features

Nearby Schools

Nearest Bars And Restaurants

,,,,}

Nearest General Shops

,,}

Nearest Grocery shops

,,}

Nearest Supermarkets

,,}

Nearest Religious buildings

,,}

Nearest Medical buildings

,,,}

Nearest Leisure Facilities

,,,,}

Nearest Tourist attractions

,,}

Nearest Train stations

,,,,}

Nearest Bus stations and stops

,,,,}

Nearest Hotels

,,}

Tags

Local Market Stats

AirBnB Data

Similar Properties

Meta

High Res Images

Compatible Images

Low res Images

Thumbnails

Raw Images

High Res Floorplan Images

Compatible Floorplan Images

Low res Floorplan Images

FloorplanImages Thumbnail

Raw Floorplan Images