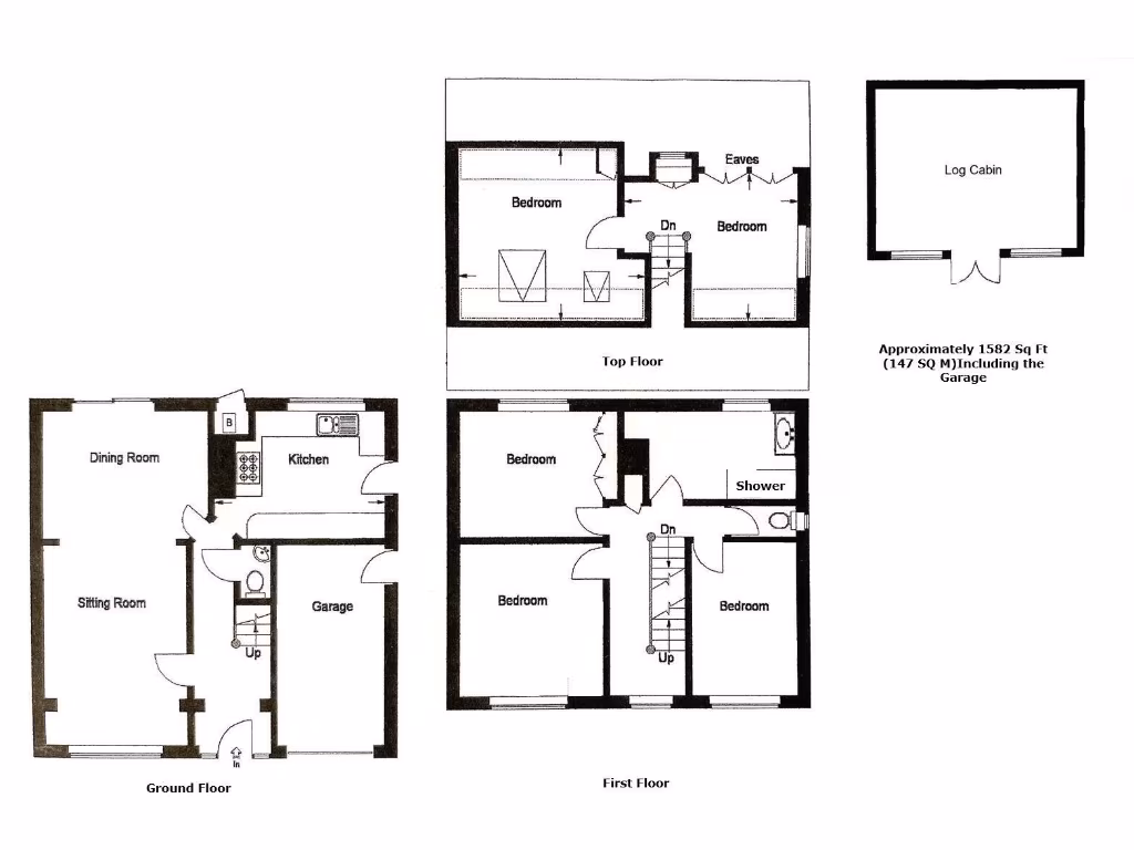
**Standout Features:**
- 4 bedrooms, plus a study/nursery
- Integral garage and off-street parking for several cars
- Modern kitchen breakfast room with high-gloss finishes and range cooker
- Bright open plan living and dining areas
- Private rear garden with a log cabin, ideal for working from home
- Well-proportioned 1555 sq ft detached family home in a sought-after location
Welcome to this charming 4-bedroom detached family home in one of Stroud's most desirable areas, measuring a generous 1555 sq ft. This property features an integral garage and ample off-street parking for multiple vehicles, ensuring convenience for families. Step inside to find a modern kitchen breakfast room complete with high-gloss cabinetry and a stylish range cooker, flowing seamlessly into bright open-plan living and dining spaces accented by a wood burner and patio doors that open to the private rear garden.
Upstairs, you'll discover three well-sized bedrooms along with a modern family shower room, while the top floor houses a spacious master bedroom and a versatile study/nursery. With an attractive garden offering privacy and a log cabin outfitted with electrics, this space is perfect for remote work or leisure. While the area provides a tranquil suburban lifestyle, it also boasts excellent amenities and schools, including Stroud High School and Marling School, both rated 'Outstanding.'
Although the property is set in a beautiful environment ideal for family life, it is essential to note that higher council tax rates and average broadband speeds may be considerations for potential buyers. With views like these and the potential for modern living, this property won't be on the market for long—viewings are highly recommended!
4 bedroom terraced house for sale in Bath Road, Stroud, GL5 — £325,000 • 4 bed • 1 bath • 1079 ft²
4 bedroom detached house for sale in Middle Street, Uplands, Stroud, GL5 — £495,000 • 4 bed • 2 bath • 1340 ft²
3 bedroom end of terrace house for sale in Bisley Road, Stroud, GL5 — £325,000 • 3 bed • 1 bath • 1077 ft²
4 bedroom detached house for sale in Summer Street, Stroud, GL5 — £495,000 • 4 bed • 2 bath • 1755 ft²
4 bedroom detached house for sale in Delmont Grove, Stroud, GL5 — £395,000 • 4 bed • 2 bath • 1374 ft²
4 bedroom semi-detached house for sale in Storrington Place, Storrington Road, Stonehouse, GL10 — £375,000 • 4 bed • 1 bath • 1435 ft²


































































































































