W6 9TG - 6 bedroom terraced house for sale in Weltje Road, Hammersmi…

View on Property Piper

6 bedroom terraced house for sale in Weltje Road, Hammersmith, W6

Summary - 9 WELTJE ROAD LONDON W6 9TG

6 bed 2 bath Terraced

Spacious Victorian terrace with river glimpses, self-contained lower ground and loft potential near top schools.
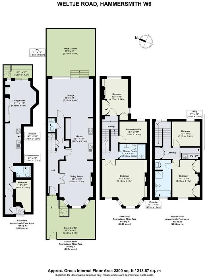
Six bedrooms across four floors, approx. 2,300 sq ft
Set on a quiet stretch of Weltje Road, this Victorian mid-terrace extends to about 2,300 sq ft across four floors and combines original period detail with practical family space. Broad sash windows and high ceilings deliver abundant natural light and lateral river glimpses; the modern kitchen and formal dining area suit everyday family life and entertaining. A private walled patio garden provides low-maintenance outdoor space.

The lower ground floor has a separate entrance and functions as a self-contained flat (bedroom, kitchenette, bathroom, patio), offering rental or au pair potential. There is scope to add further accommodation with a loft conversion (subject to planning permission), which could increase living space and value. Heating is gas-fired with boiler and radiators; glazing is double but insulation levels in the solid brick walls are unknown.

Be clear about tangible drawbacks: the area records very high crime rates and local deprivation indicators, and council tax is in band G (quite expensive). EPC rating D and assumed lack of wall insulation mean planned works may be needed to improve energy efficiency. Overall, this home suits families seeking a large, characterful terrace near riverside amenities and top schools, or investors targeting rental income from the self-contained lower ground accommodation.

Property Details

Brochure Descriptions

Image Descriptions

Floorplan Description

Rooms

Textual Property Features

Target Audience

AI Tags

Detected Visual Features

EPC Details

Nearby Schools

Nearest Bars And Restaurants

,,,,}

Nearest General Shops

,,}

Nearest Grocery shops

,,}

Nearest Supermarkets

,,}

Nearest Religious buildings

,,}

Nearest Medical buildings

,,,}

Nearest Airports

,,}

Nearest Leisure Facilities

,,,,}

Nearest Tourist attractions

,,}

Nearest Train stations

,,,,}

Nearest Bus stations and stops

,,,,}

Nearest Hotels

,,}

Tags

Local Market Stats

AirBnB Data

Similar Properties

Meta

High Res Images

Compatible Images

Low res Images

Thumbnails

Raw Images

High Res Floorplan Images

Compatible Floorplan Images

Low res Floorplan Images

FloorplanImages Thumbnail

Raw Floorplan Images