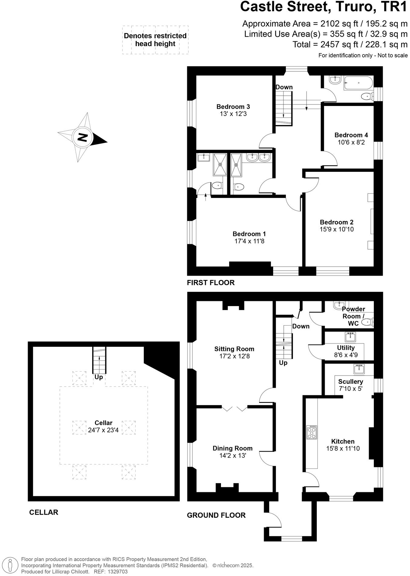
**Standout Features:**
- Recently refurbished Grade II Listed Georgian villa
- Over 2,000 sq.ft. with 4 spacious bedrooms and 3 modern bathrooms
- Luxurious finishes and period features highlighted throughout
- South-facing garden and off-street parking
- Immediate vacant possession, no onward chain
- Prime city center location with excellent amenities nearby
- Historic charm with high ceilings and large windows
This beautifully finished, newly renovated Grade II Listed Georgian villa is a rare find in the heart of Truro, ideal for families seeking luxury city living or investors looking for a prime rental property. With over 2,000 sq.ft. of generously proportioned living space, including four large bedrooms and three contemporary bathrooms, the property exudes elegance with its period features, high ceilings, and ornate details, complemented by modern furnishings.
The south-facing garden provides a tranquil outdoor retreat, while off-street parking adds convenience. Enjoy the vibrant community with various amenities within walking distance, including excellent schools, cafes, and shops. However, potential buyers should note the listed status may present some limitations for future renovations. This is an exclusive opportunity to own a striking home in a fantastic location, sold chain-free and ready for immediate occupation—don’t miss out on the chance to make this exceptional property your new home!
3 bedroom house for sale in Truro, Cornwall, TR1 — £699,950 • 3 bed • 2 bath
4 bedroom terraced house for sale in The Parade, Truro, TR1 — £750,000 • 4 bed • 2 bath • 2118 ft²
4 bedroom terraced house for sale in Falmouth Road, Truro, Cornwall, TR1 — £795,000 • 4 bed • 5 bath • 3000 ft²
5 bedroom town house for sale in Falmouth Road, Truro, Cornwall, TR1 — £899,950 • 5 bed • 4 bath • 2600 ft²
3 bedroom house for sale in Truro - Central location for access to shops and amenities, TR1 — £290,000 • 3 bed • 2 bath • 915 ft²
3 bedroom terraced house for sale in Falmouth Road, Truro, Cornwall, TR1 — £649,950 • 3 bed • 2 bath • 2496 ft²






































































































