Period charm and a stylish dining kitchen in the heart of Stockton Heath — ideal starter home..
Bay-fronted lounge with character fireplace
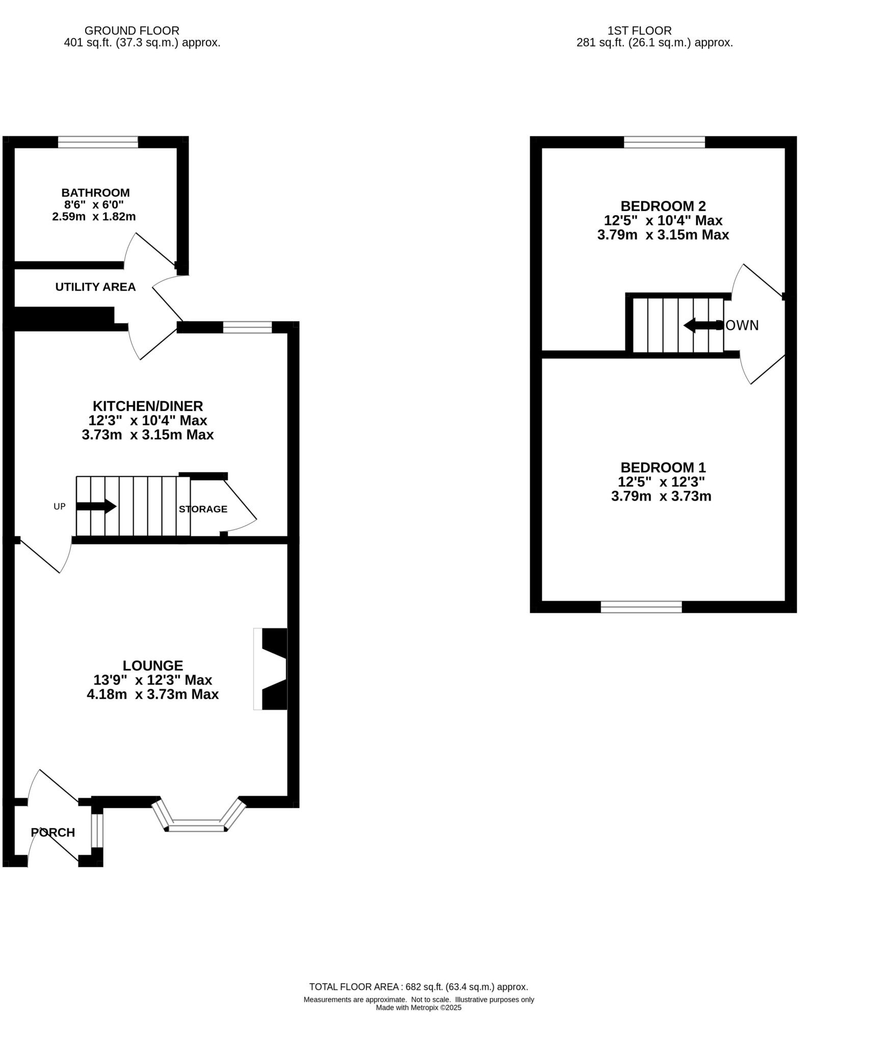
Set in the heart of Stockton Heath village, this two-bedroom period mid-terrace blends character details with practical living. A bay-fronted lounge with a feature fireplace and modern dining kitchen give comfortable living space for a first home or young couple. The property benefits from fast broadband, excellent mobile signal and a selection of highly rated local schools nearby.
Upstairs offers two comfortable bedrooms and a generously sized bathroom with shower-over-bath. A useful utility area leads to an enclosed rear garden with raised beds and a patio — an easy-to-maintain outdoor space for evening drinks or potted plants. The home is freehold, with low local crime and an affluent area profile.
Buyers should note the house was built c.1900–1929 with solid brick walls likely without cavity insulation, and the double glazing was installed before 2002. These factors mean energy efficiency may be below modern standards and future insulation or window upgrades could be beneficial. The plot is small and overall size is average, so this is best suited to buyers seeking a compact, well-located starter home rather than large-family living.
With a stylish fitted dining kitchen, character features and a handy village location close to shops, cafes and transport, the property offers straightforward potential for cosmetic updating and targeted energy improvements to boost comfort and value.
2 bedroom terraced house for sale in Gaskell Street, Stockton Heath, Warrington, Cheshire, WA4 — £285,000 • 2 bed • 1 bath • 773 ft²
3 bedroom terraced house for sale in Victoria Road, Stockton Heath, Warrington, WA4 — £425,000 • 3 bed • 1 bath • 1275 ft²
2 bedroom terraced house for sale in Kimberley Drive, Stockton Heath, WA4 — £250,000 • 2 bed • 1 bath • 790 ft²
2 bedroom terraced house for sale in Leonard Street, Stockton Heath, Warrington, WA4 — £250,000 • 2 bed • 1 bath • 607 ft²
2 bedroom terraced house for sale in Cawdor Street, Stockton Heath, Warrington, WA4 — £300,000 • 2 bed • 1 bath • 1054 ft²
2 bedroom terraced house for sale in Farrell Road, Stockton Heath, WA4 — £330,000 • 2 bed • 1 bath • 900 ft²


































