Light-filled apartment with garden and loft room, ideal for first-time buyers.
Own private ground-floor entrance
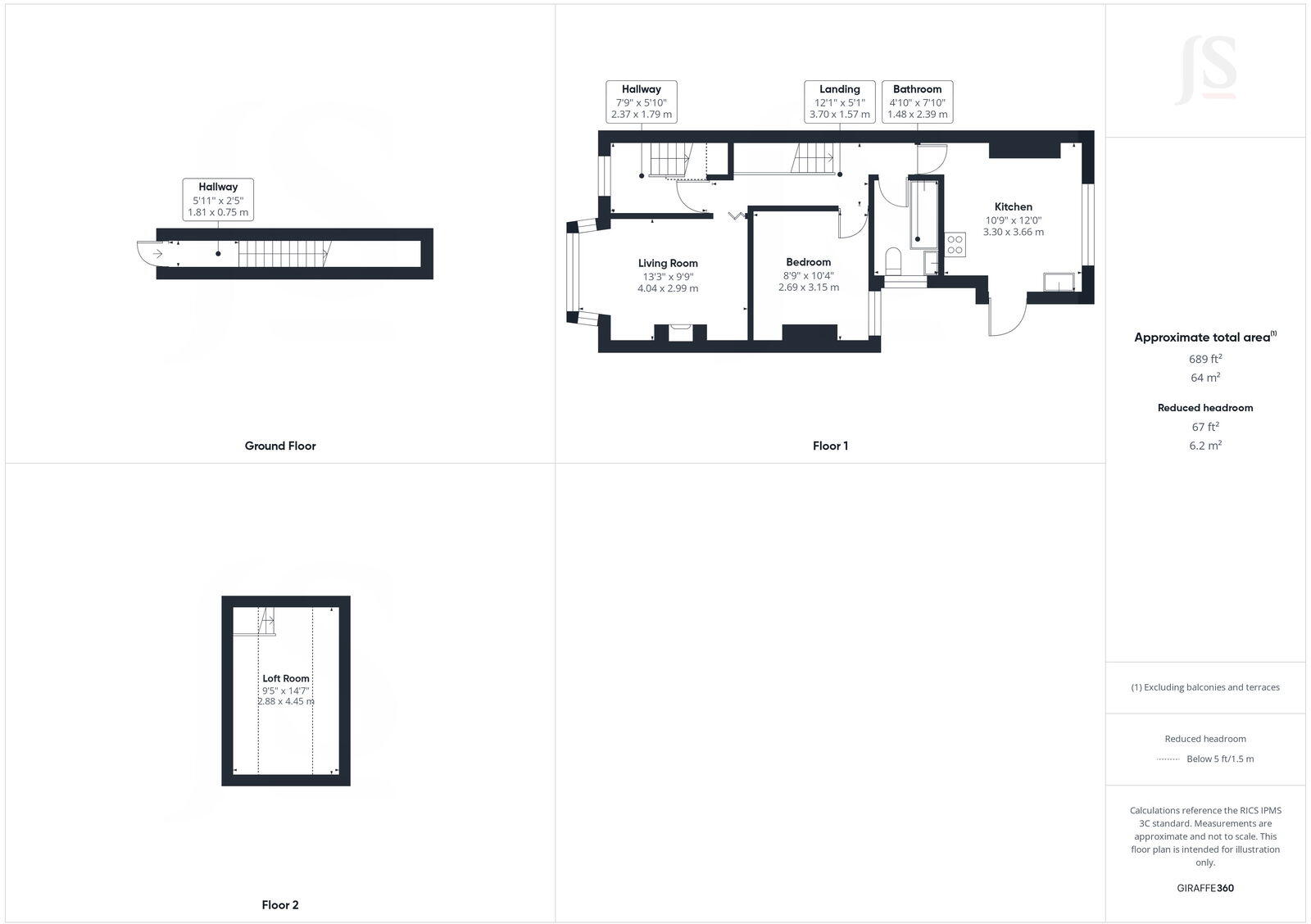
A bright, well-proportioned first-floor apartment with its own private entrance and a rare west-facing garden. The bay-front living room fills with natural light while the kitchen/breakfast room provides space for dining and everyday use. An additional loft room above adds flexible space for a home office or occasional bedroom. At about 650 sq ft this home feels larger than many one-bed flats.
Practical features include double glazing (installed post-2002), mains gas boiler and radiators, and surprisingly low council tax costs. The property sits in a residential West Hove street close to Portslade station, local shops and schools, offering good commuter links and everyday convenience.
Notable points to check: the listing references a “whole freehold” yet the formal tenure is shown as leasehold — buyers should verify ownership and lease terms. The building’s cavity walls are noted as having no insulation (assumed), so some thermal or retrofit work could reduce heating costs. The apartment is split over multiple floors with stairs to the loft room and garden level, which may affect accessibility.
This property suits a first-time buyer seeking extra space and outdoor access without stepping up to a house. It also offers scope for energy improvements and cosmetic updates to personalise the interior, while the quiet garden and proximity to transport keep daily life practical and pleasant.
1 bedroom apartment for sale in Livingstone Road, Hove, BN3 — £269,950 • 1 bed • 1 bath • 354 ft²
1 bedroom flat for sale in Cowper Street, Hove, BN3 — £290,000 • 1 bed • 1 bath • 427 ft²
1 bedroom ground floor flat for sale in Langdale Road, Hove, BN3 — £270,000 • 1 bed • 1 bath • 376 ft²
1 bedroom flat for sale in St Aubyns, Hove, BN3 2TL, BN3 — £250,000 • 1 bed • 1 bath • 400 ft²
2 bedroom apartment for sale in Hova Villas, Hove, BN3 — £450,000 • 2 bed • 1 bath • 836 ft²
1 bedroom flat for sale in Tisbury Road, Hove, BN3 3BL, BN3 — £250,000 • 1 bed • 1 bath • 513 ft²


































