Single-storey modern living with parking and loft potential.
Recently modernised throughout, neutral contemporary finishes
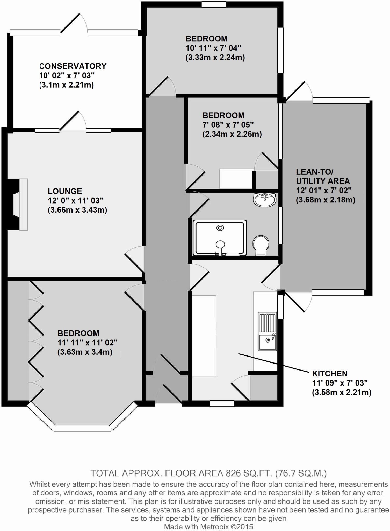
This three-bedroom semi-detached bungalow offers single-storey living in a quiet Orpington road, recently modernised and offered with no onward chain. The accommodation includes a lounge opening to a conservatory, a contemporary fitted kitchen, a lean-to utility, and a shower room — practical for downsizers or small families wanting comfortable, low-step living. Off-street parking and a decent rear garden add outdoor space without extensive upkeep.
There is clear scope to increase value: loft conversion (subject to planning) has been done to similar properties locally, and the extended footprint already provides more ground-floor space than many comparable bungalows. The interior finishes are neutral and recent, so the property is largely move-in ready while still allowing cosmetic personalisation.
Notable constraints are the single shower room and an overall internal area that is modest for a three-bedroom home (c. 826 sq ft). The property was constructed mid-20th century with solid brick walls, which may mean limited cavity insulation unless improved. Prospective buyers should factor potential insulation or energy-efficiency upgrades into any purchase decision.
Set in an affluent, low-crime suburb with fast broadband and good mobile signal, the location benefits from nearby schools and transport links into Orpington and beyond. For buyers seeking a manageable, modern ground-floor home with straightforward extension potential, this bungalow represents practical value in a desirable neighbourhood.
2 bedroom semi-detached bungalow for sale in Somerden Road, Orpington, BR5 — £410,000 • 2 bed • 1 bath • 810 ft²
2 bedroom bungalow for sale in Northfield Avenue, Orpington, BR5 — £400,000 • 2 bed • 1 bath • 704 ft²
2 bedroom bungalow for sale in Kynaston Road, Orpington, BR5 — £475,000 • 2 bed • 1 bath • 727 ft²
2 bedroom bungalow for sale in Somerden Road, Orpington, Kent, BR5 — £400,000 • 2 bed • 1 bath • 689 ft²
2 bedroom bungalow for sale in Waldenhurst Road, Orpington, Kent, BR5 — £375,000 • 2 bed • 1 bath • 657 ft²
2 bedroom semi-detached bungalow for sale in Church Hill Wood, Orpington, BR5 — £499,999 • 2 bed • 1 bath • 705 ft²


















































