Period character with modern upgrades and generous outdoor space.
4 double bedrooms with very large room sizes
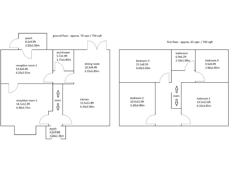
This spacious four-bedroom Victorian semi-detached house blends period character with recent, high-quality upgrades. The property extends to about 1,450 sq ft and offers very large bedrooms, a separate ground-floor reception room and abundant storage created by lowered upstairs ceilings. Renovations completed since 2020 include a new roof, full rewire, new central heating, new flooring, new bathroom and new doors.
Outside, the low-maintenance frontage and double-width driveway lead to a very large garage. Side and rear gardens are laid out for easy upkeep with deck, patio, lawn, mature beds, a 12ft raised vegetable bed and two sheds — appealing for family life and light gardening without intensive upkeep. Mobile signal is excellent and the house sits in an affluent village setting with several well-rated primary and secondary schools nearby.
Buyers should note the home sits in a remoter village classification, so local services are limited compared with urban areas. Broadband speeds are average, and the wider area shows typical village-level crime (average). The lowered ceilings upstairs create substantial additional storage but reduce headroom in the upper rooms. The property is freehold and has no flood risk.
Overall this house suits families seeking character, generous room sizes and turnkey accommodation after recent full renovations. It also offers scope for future adaptation if you prefer to restore higher upstairs ceilings or tailor rooms to changing needs.
4 bedroom semi-detached house for sale in Chapman Road, Fulwood, PR2 — £395,000 • 4 bed • 2 bath • 2038 ft²
3 bedroom end of terrace house for sale in Whittingham Lane, Whittingham, Preston, Lancashire, PR3 — £240,000 • 3 bed • 2 bath • 1768 ft²
3 bedroom semi-detached house for sale in Garstang Road, Bowgreave, PR3 — £339,995 • 3 bed • 1 bath • 1555 ft²
5 bedroom semi-detached house for sale in Higher Bank Road, Fulwood, Preston, Lancashire, PR2 — £495,000 • 5 bed • 3 bath • 2923 ft²
4 bedroom detached house for sale in Ainspool Lane, Churchtown, PR3 — £550,000 • 4 bed • 2 bath • 1803 ft²
3 bedroom semi-detached house for sale in Whittingham Lane, Goosnargh, PR3 — £320,000 • 3 bed • 2 bath • 1109 ft²






























































































































