CT11 8BB - 4 bed detached 1930s family home in Avebury Avenue, CT11 8BB

View on Property Piper

4 bedroom detached house for sale in Avebury Avenue, Ramsgate, CT11

Summary - 2 AVEBURY AVENUE RAMSGATE CT11 8BB

4 bed 2 bath Detached

Spacious coastal family house with mature garden and flexible living spaces.
4 double and single flexible bedrooms, principal bedroom with bay window
Open-plan 24'4 x 11'10 kitchen/diner forms the family hub
Two reception rooms including bay-fronted lounge
Mature, well-planted rear garden — private and family-friendly
Attached garage/gym with window; various potential uses
Off-street parking on a long drive; quiet no-through road location
EPC C (67); Council Tax Band D; all mains connected
Chain free sale; some modernization will increase value
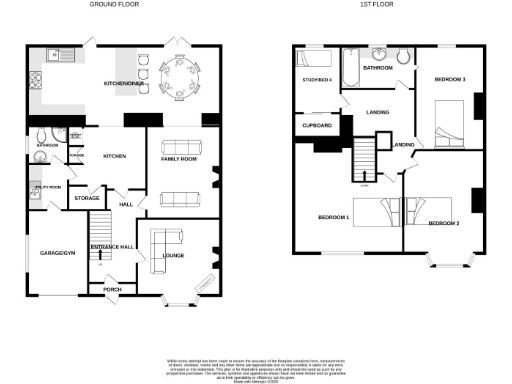
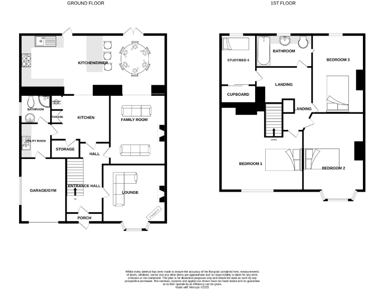
Set on a quiet cul-de-sac between Ramsgate and Broadstairs, this extended 1930s detached home is arranged around a generous open-plan kitchen/diner that works as the family hub. The layout includes two reception rooms (one with a bay window), a ground-floor utility and shower-room, plus a versatile garage currently used as a gym. The property is offered chain free for a quicker move.

Upstairs are four bedrooms — three doubles and a single/study — and a family bathroom. Large rear doors link the kitchen/diner to a mature, private garden that promises season-long interest and plenty of space for children and outdoor entertaining. Off-street parking on the drive leads to the attached garage.

The house is well cared for with character features from the 1930s and an EPC rating of C (67). There is clear potential to modernise certain areas to increase value or tailor the layout for contemporary family life. Council Tax Band D and all mains services are connected.

Location is a strong selling point: local shops, cafés and Ramsgate’s Royal Harbour are within easy reach, high-speed rail services to London are available from Ramsgate station, and several well-regarded primary and secondary schools serve the area. This home suits a family seeking space, a private garden, and easy coastal access with commuter convenience.

Property Details

Brochure Descriptions

Image Descriptions

Rooms

Textual Property Features

Target Audience

AI Tags

Detected Visual Features

EPC Details

Nearby Schools

Nearest Bars And Restaurants

,,,,}

Nearest General Shops

,,}

Nearest Grocery shops

,,}

Nearest Supermarkets

,,}

Nearest Religious buildings

,,}

Nearest Medical buildings

,,,}

Nearest Leisure Facilities

,,,,}

Nearest Tourist attractions

,,}

Nearest Train stations

,,,,}

Nearest Bus stations and stops

,,,,}

Nearest Hotels

,,}

Tags

Local Market Stats

AirBnB Data

Similar Properties

Meta

High Res Images

Compatible Images

Low res Images

Thumbnails

Raw Images

High Res Floorplan Images

Compatible Floorplan Images

Low res Floorplan Images

FloorplanImages Thumbnail

Raw Floorplan Images