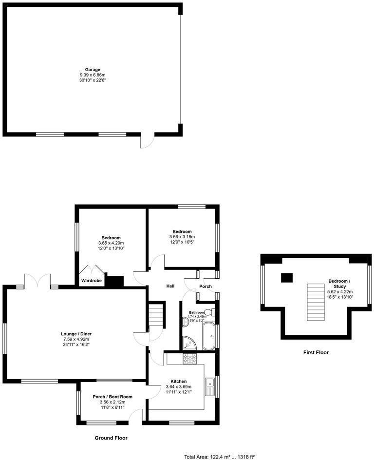
Huge workshop, generous outdoor space and modern interiors ideal for hobbyists or families.
- Detached bungalow on a large plot with generous gardens and fruit trees
- Re-fitted kitchen with integrated appliances and fully tiled bathroom
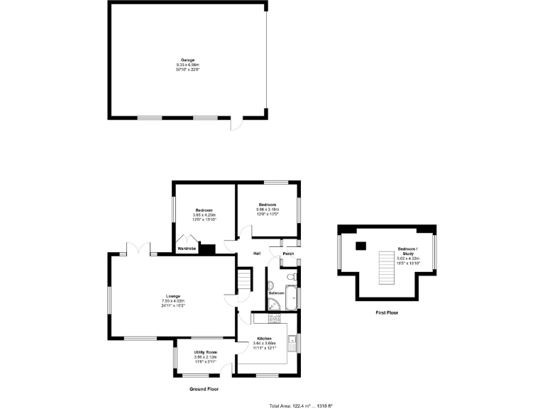
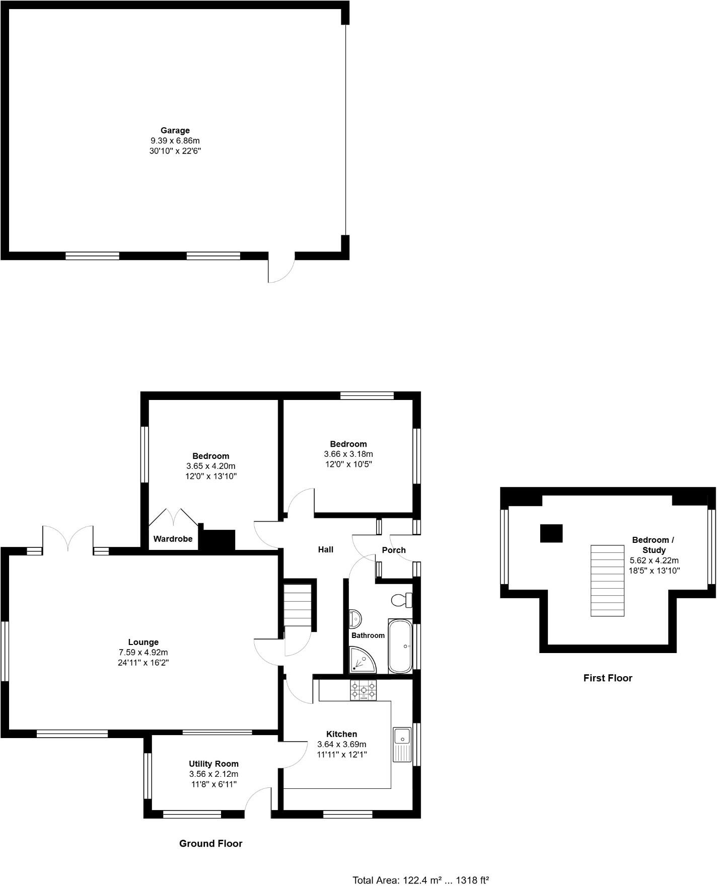
- Impressive 30'10" x 22'6" garage/workshop with inspection pit
- Loft currently used as bedroom/study; not a full-height third bedroom
- Two ground-floor double bedrooms and one bathroom only
- Ample block-paved driveway parking with gated access
- Recent boiler replacement; newly renovated interior finishes
- Potential for annex or studio conversion subject to permissions
Well-presented two-bedroom detached bungalow on a generous plot, recently updated for modern living. The property benefits from a re-fitted kitchen with integrated appliances, a fully tiled bathroom, attractive internal finishes, and a replaced Worcester boiler. Natural light fills the large living room, which features a multi-fuel burner and offers comfortable, adaptable living space for everyday family life.
The standout feature is the substantial 30'10" x 22'6" detached garage/workshop with a built-in inspection pit. This versatile outbuilding provides exceptional storage, hobby or workshop space and could suit car enthusiasts, home-business use, or a potential annex/studio conversion subject to planning permission. The long block-paved driveway gives ample off-road parking and gated access for added privacy.
Outside, generous gardens and several fruit trees create a pleasant private setting with scope for further landscaping or outdoor entertaining. Note that the home has two ground-floor double bedrooms and a single bathroom; the loft provides a useful bedroom/study but is not a full-height third bedroom. Viewing is recommended to appreciate the plot size, garage potential and recent improvements.
2 bedroom detached bungalow for sale in Welton Road, Daventry, Northamptonshire, NN11 — £345,000 • 2 bed • 1 bath • 853 ft²
3 bedroom detached bungalow for sale in Summer Cottage Well Lane Welton, NN11 — £355,000 • 3 bed • 1 bath • 855 ft²
3 bedroom detached bungalow for sale in Farndon Road, Woodford Halse, NN11 — £450,000 • 3 bed • 2 bath • 1244 ft²
4 bedroom bungalow for sale in Moorend Road, Yardley Gobion, Towcester, Northamptonshire, NN12 — £700,000 • 4 bed • 2 bath • 1573 ft²
2 bedroom detached bungalow for sale in Browning Close Daventry Northamptonshire, NN11 — £335,000 • 2 bed • 1 bath • 1267 ft²
3 bedroom detached house for sale in Park Lane, Walton, LE17 — £425,000 • 3 bed • 2 bath • 1744 ft²






























































































