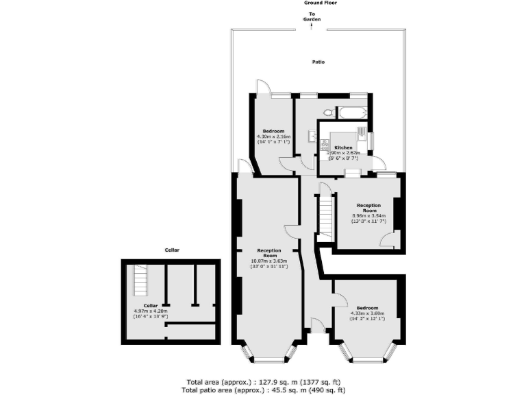
Large two-bedroom home with garden, parking and extension potential in central Tooting.
- Very large living area — about 1,400 sq ft (127.9 sq m)
- Two double bedrooms and one family bathroom
- South-facing private garden, substantial patio area
- Off-street parking directly at the property
- Double-fronted Victorian with original features and high ceilings
- Leasehold tenure; confirm term and service arrangements
- Solid brick walls (likely no insulation) — consider energy upgrades
- Extension potential (STPP) but requires planning and consent
A rare, double-fronted Victorian maisonette offering almost 1,400 sq ft of living space on Longley Road, with two double bedrooms, generous reception rooms and a large south-facing garden. High ceilings, original period detail and wide bay windows give the principal rooms abundant light and a strong sense of space. The fitted kitchen is modern in style and there is useful cellar storage plus off-street parking — a hard-to-find combination in Tooting.
The property is leasehold and currently arranged as a multi-storey maisonette with one family bathroom; buyers should note the limited bedroom count relative to the overall footprint. There is clear potential to reconfigure or extend (subject to planning permission) to add space or improve layout for family use or enhanced rental return.
Practical details: the building dates from the early 20th century, has solid brick walls (likely uninsulated), double glazing of unknown install date and gas central heating. These period fabric realities mean further insulation and energy-efficiency work may be beneficial. Information given is for guidance and should be checked and confirmed prior to proceeding.
2 bedroom flat for sale in Longley Road, Tooting, SW17 — £400,000 • 2 bed • 1 bath • 561 ft²
1 bedroom flat for sale in Longley Road, Tooting, SW17 — £400,000 • 1 bed • 1 bath • 596 ft²
2 bedroom flat for sale in Longley Road, Tooting, SW17 — £450,000 • 2 bed • 1 bath • 528 ft²
2 bedroom ground floor flat for sale in Longley Road, London, SW17 — £585,000 • 2 bed • 1 bath • 731 ft²
2 bedroom maisonette for sale in Sellincourt Road, Tooting, SW17 — £525,000 • 2 bed • 1 bath • 680 ft²
2 bedroom flat for sale in Longley Road, Tooting, SW17 — £440,000 • 2 bed • 1 bath • 337 ft²






















































