Affordable entry or rental with garden and good transport links.
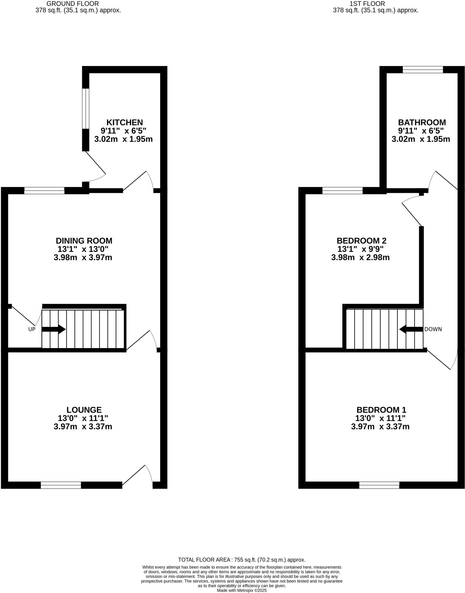
Two double bedrooms and two reception rooms
This two-bedroom end-of-terrace offers a practical, affordable step onto the property ladder or a straightforward buy-to-let opportunity. The home has two reception rooms, two double bedrooms and a private rear garden, all within walking distance of local shops, schools and transport links.
Internals are largely modern: double glazing, gas central heating and a contemporary bathroom. The layout and room sizes (lounge, dining room, fitted kitchen and first-floor bathroom) give flexible living and decent rental appeal for the DE7 market.
Important practical points: the house is Victorian solid-brick construction (pre-1900) and walls are assumed uninsulated, which may mean higher heating costs and potential damp or upgrade works. The property sits in a very deprived area with a high local crime rate; purchasers should consider security, insurance and long-term area trends.
Parking is on-street only and the plot is small, so outdoor space is modest. Tenure is unknown and should be checked; buyers should also factor in potential maintenance and retrofit costs if improving insulation or original features. Overall, this is a well-presented, value-led home suited to first-time buyers or investors prepared to accept location-related trade-offs.
2 bedroom terraced house for sale in Springfield Gardens, Ilkeston, DE7 — £145,000 • 2 bed • 1 bath • 817 ft²
2 bedroom end of terrace house for sale in Norman Street, Ilkeston, DE7 — £180,000 • 2 bed • 1 bath • 926 ft²
2 bedroom end of terrace house for sale in Mill Street, Ilkeston, Derbyshire, DE7 — £125,000 • 2 bed • 1 bath • 806 ft²
2 bedroom end of terrace house for sale in Millfield Road, Ilkeston, DE7 — £160,000 • 2 bed • 1 bath • 828 ft²
2 bedroom end of terrace house for sale in Park Drive, Ilkeston, DE7 — £175,000 • 2 bed • 1 bath • 1023 ft²
2 bedroom semi-detached house for sale in Cotmanhay Road, Ilkeston, DE7 — £150,000 • 2 bed • 1 bath • 915 ft²






















































