Turnkey let property with tenants until mid-2026, close to university amenities.
Four double bedrooms, three with built-in wardrobes
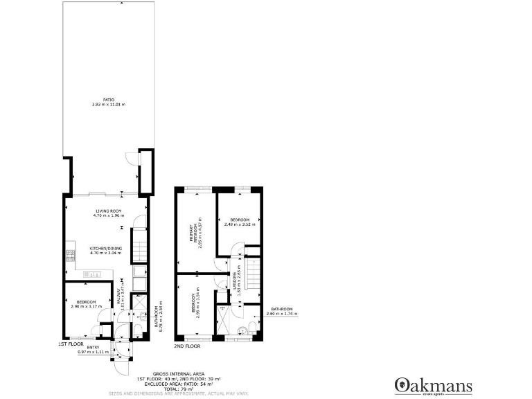
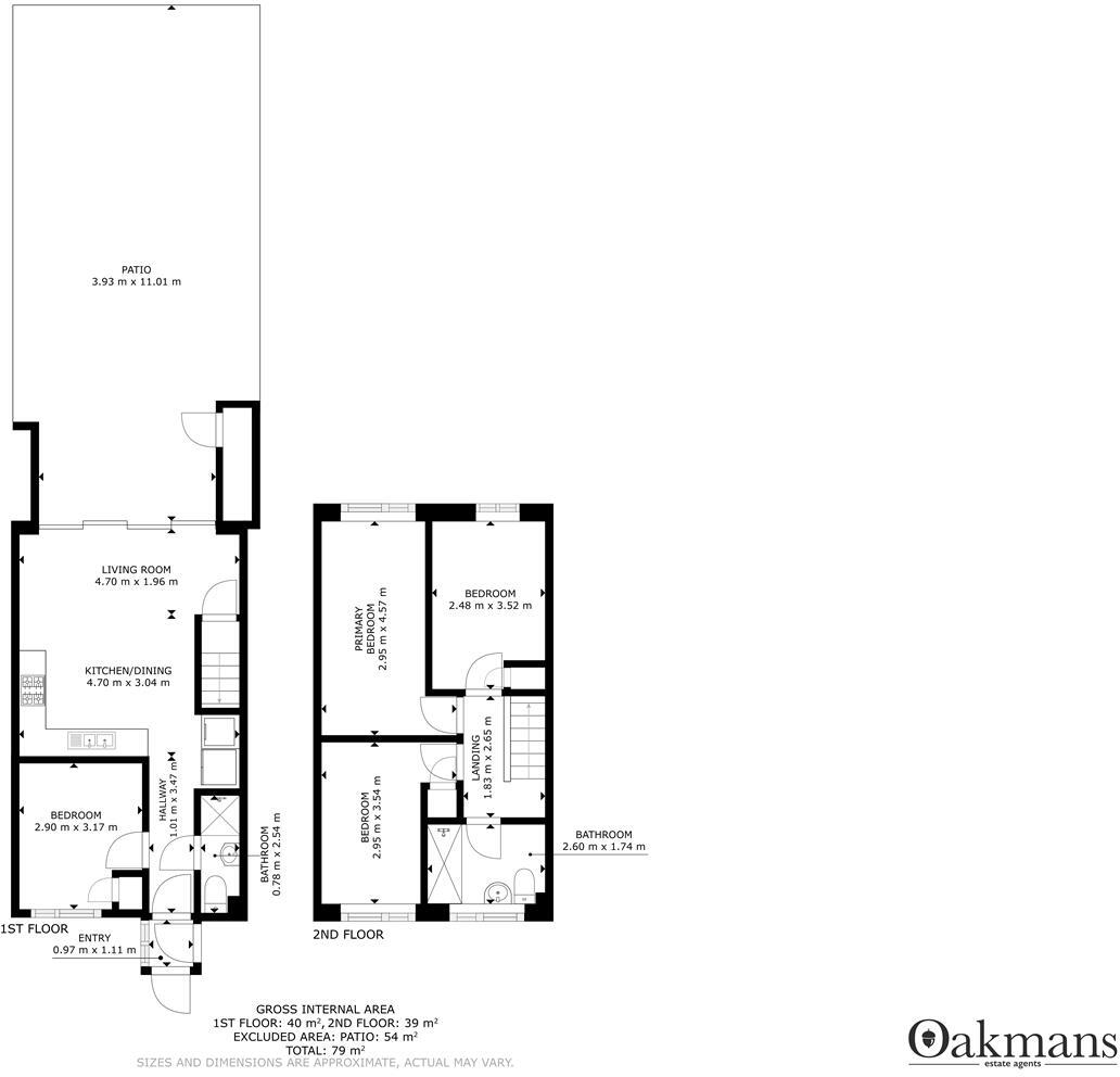
A four-bedroom mid-terrace in Selly Oak arranged and let as a student investment, offered with tenants in place until 30 June 2026. The house is compact at about 850 sq ft but well laid out: four double bedrooms (three with built-in wardrobes), open-plan living/kitchen, and two modern shower rooms. The property is sold freehold and currently presented fully furnished with quality fittings, making it turnkey for an investor.
Practical systems are in place: gas combi boiler with radiators, double glazing, and the seller reports up-to-date gas safety, EICR and fire detection compliance. EPC is C. There is a low-maintenance gravel front and a private rear garden with gated access. Good local transport links, nearby shops and food outlets, and proximity to university facilities support strong student demand.
Material considerations: tenants remain until mid-2026, so owner-occupation or vacant possession is not immediate. The plot and overall property size are small, and the mid-terrace layout limits scope for major lateral expansion without planning. Council tax is reported as Band B but should be verified by buyers' solicitors.
This will suit a landlord seeking a let-ready student asset with immediate rental income and potential to optimise returns after the tenancy. Viewings are advisable to assess condition and future configuration potential for longer‑term value growth.
4 bedroom house for sale in Teignmouth Road, Birmingham, West Midlands, B29 — £375,000 • 4 bed • 1 bath • 765 ft²
7 bedroom house for sale in Oak Tree Lane, Selly Oak, Birmingham, West Midlands, B29 — £425,000 • 7 bed • 2 bath • 1217 ft²
3 bedroom terraced house for sale in North Road, Selly Oak, Birmingham, West Midlands, B29 — £390,000 • 3 bed • 2 bath • 786 ft²
6 bedroom house for sale in Hubert Road, Selly Oak, Birmingham, West Midlands, B29 — £450,000 • 6 bed • 3 bath • 1497 ft²
4 bedroom semi-detached house for sale in Warwards Lane, Birmingham, West Midlands, B29 — £300,000 • 4 bed • 1 bath
6 bedroom house for sale in Dartmouth Road, Selly Oak, Birmingham, B29 6DR, B29 — £480,000 • 6 bed • 3 bath


































































































