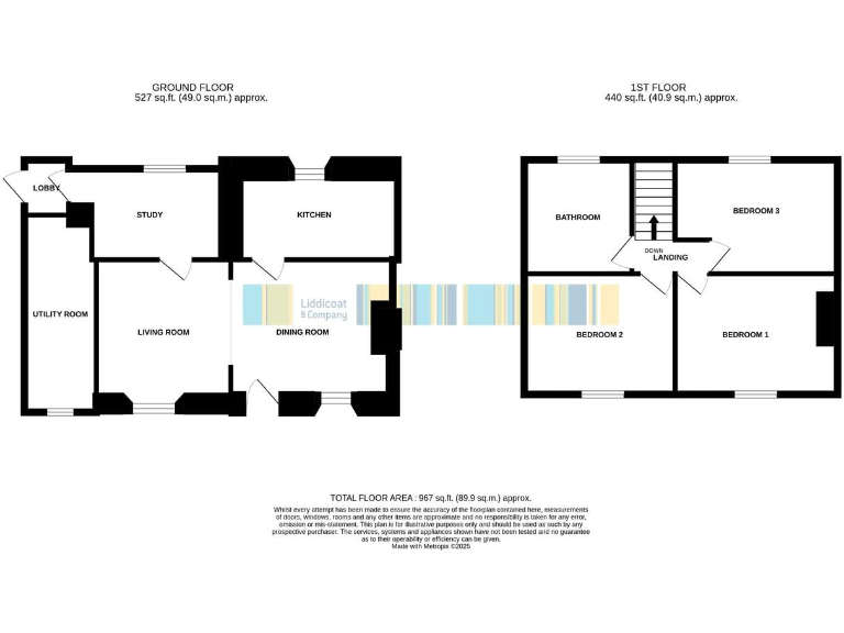
Characterful three-bedroom home with large garden and generous parking, close to Charlestown amenities.
- Three double bedrooms, family bathroom
- Large level front garden and side garden
- Off-street parking for approximately 4–5 cars
- Built before 1900 in cob; strong period character
- Double glazing installed during or after 2002
- Main heating: electric storage radiators (electric fuel)
- Total internal size ~967 sqft; average room footprints
- Single bathroom and period maintenance considerations
Steeped in period character, this three-bedroom semi-detached cottage offers a rare combination of traditional charm and practical outdoor space. The home benefits from a large, level front garden and off-street parking for around four to five cars — a notable advantage for village-edge living. Internally the layout includes a part-divided lounge and dining area, a well-fitted kitchen, a study/utility area and three double bedrooms on the first floor.
Built before 1900 in cob construction, the property retains original proportions and character features while having modern upgrades such as double glazing (fitted post-2002) and electric radiators. The overall footprint is average for a three-bedroom cottage at about 967 sqft, with good natural light and comfortable room proportions for family life.
Buyers should note the home is heated by electric storage radiators and uses electricity as the main fuel, which can influence running costs compared with gas heating. There is a single family bathroom serving three bedrooms, and as an older cob-built property it may need specialist maintenance or sensitive upgrades to preserve its fabric. Freehold tenure, low local crime and no flood risk add practical reassurance for a family purchaser.
Located in the St Austell/Charlestown area with good local schools and amenities nearby, this cottage suits buyers seeking character, generous outdoor space and convenient parking, while accepting the realities of a period, electric-heated home.
3 bedroom semi-detached house for sale in Holmbush Road, St Austell, PL25 — £349,950 • 3 bed • 2 bath • 887 ft²
3 bedroom semi-detached house for sale in Holmbush Road, St Austell, PL25 — £285,000 • 3 bed • 1 bath • 882 ft²
3 bedroom semi-detached house for sale in Penwithick Road, Penwithick, PL26 — £175,000 • 3 bed • 1 bath • 814 ft²
3 bedroom character property for sale in Duporth Road, St Austell, PL25 — £375,000 • 3 bed • 1 bath • 779 ft²
3 bedroom property for sale in Charlestown Road, St. Austell, PL25 — £475,000 • 3 bed • 2 bath • 1007 ft²
4 bedroom detached house for sale in Caudledown Lane, Stenalees, St. Austell, PL26 — £350,000 • 4 bed • 2 bath • 1299 ft²






























































































