Quiet rear position moments from tube, shops and Wanstead Flats.
Chain free with approximately 151 years remaining on the lease
No ground rent payable; service charge £1,420 per year
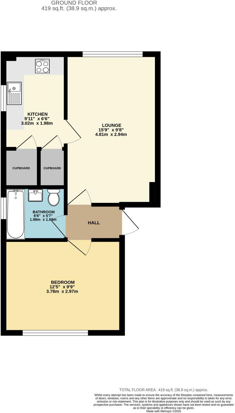
Compact living: approximately 419 sq ft, one double bedroom
Electric room heaters (no gas central heating) — consider running costs
Very slow local broadband speeds reported
Located a short walk to Leytonstone Central Line and Overground
Off-street residents' parking and access to communal grounds
Area notes: higher crime rate and local deprivation — check suitability
This well-presented one-bedroom ground-floor flat is a sensible step onto the property ladder. Tucked to the rear of the block, it offers privacy and a bright living/dining room, a functional fitted kitchen with integrated oven and hob, and a good-sized double bedroom — all offered chain free with a long lease and no ground rent.
The location is a primary selling point: Leytonstone Central Line and High Road Overground are a short walk away, with excellent bus and cycle links to the City. Local shopping includes Tesco, Aldi and M&S Food Hall, plus cafés, independents and easy access to Wanstead Flats for outdoor leisure.
Buyers should note the material practicalities: heating is by electric room heaters rather than gas central heating, broadband speeds in the area are reported as very slow, and the neighbourhood records higher crime and relative deprivation — factors to consider for resale or rental prospects. Annual service charge is £1,420 and the flat totals about 419 sq ft, so space is compact.
Overall, this flat will suit a first-time buyer seeking a low-entry, low-maintenance home close to transport and amenities, or an investor wanting a straightforward, chain-free purchase with a long lease. The combination of no ground rent, ample lease length and immediate walkable convenience gives clear short-term usability and long-term flexibility.
1 bedroom flat for sale in Brockway Close, Leytonstone, E11 — £250,000 • 1 bed • 1 bath • 391 ft²
1 bedroom flat for sale in Capworth Street, Leyton, E10 — £275,000 • 1 bed • 1 bath • 561 ft²
1 bedroom flat for sale in Nexus Court, 10 Kirkdale Road, Leytonstone, London, E11 1HB, E11 — £325,000 • 1 bed • 1 bath • 676 ft²
1 bedroom ground floor flat for sale in High Road Leytonstone, London, E11 4RD, E11 — £325,000 • 1 bed • 1 bath • 714 ft²
1 bedroom flat for sale in Brockway Close, Leytonstone, E11 — £240,000 • 1 bed • 1 bath • 312 ft²
1 bedroom apartment for sale in Robart House, 1 Lemna Road, Leytonstone, London, E11 1FF, E11 — £325,000 • 1 bed • 1 bath • 478 ft²


























































