Grade II listed studio, chain-free and central — ideal first home or rental investment.
Grade II listed first-floor studio in Bridport town centre
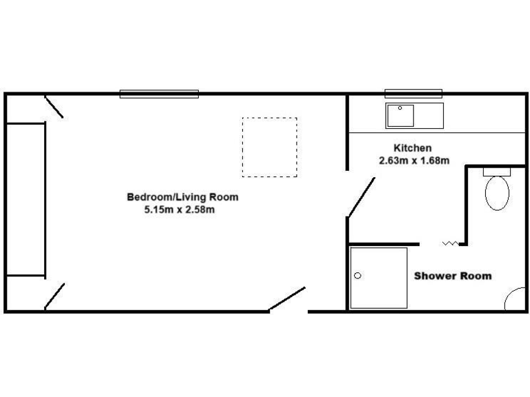
A compact, chain-free first-floor studio in the centre of Bridport, set within a Grade II listed Victorian building. The apartment has a bright main living area with a skylight, a fitted kitchenette, separate shower room and built-in storage — all arranged efficiently across a small footprint suited to single occupancy or rental use.
Practical strengths include ultrafast broadband, excellent mobile signal and very long lease tenure (999 years from 1985). The location is a genuine town-centre convenience: shops, markets, cafés and public transport are all nearby and the Jurassic Coast at West Bay is within easy reach.
There are notable constraints to accept: the building’s listed status will restrict alterations and could complicate refurbishment or cosmetic changes. Heating is by electric storage heaters and the walls are likely uninsulated solid brick, so running costs and comfort may be higher than modern alternatives. The apartment is compact with no private outdoor space and is accessed via shared entrance stairs.
Overall this is a straightforward, low-maintenance town-centre studio that will appeal to a first-time buyer wanting a central base or an investor seeking a compact, easy-to-manage lettable unit. Buyers should factor in the listed status, basic heating and potential improvement costs when assessing value.
1 bedroom flat for sale in Bridport, DT6 — £80,000 • 1 bed • 1 bath • 338 ft²
1 bedroom flat for sale in Bridport Town Centre, DT6 — £60,000 • 1 bed • 1 bath
1 bedroom flat for sale in Bridport, DT6 — £115,000 • 1 bed • 1 bath • 363 ft²
2 bedroom apartment for sale in Chancery Lane, Bridport, DT6 — £200,000 • 2 bed • 1 bath • 702 ft²
3 bedroom penthouse for sale in South Street, Bridport, Dorset, DT6 — £275,000 • 3 bed • 1 bath • 1871 ft²
2 bedroom flat for sale in Bridport Town Centre, DT6 — £425,000 • 2 bed • 2 bath • 1260 ft²






















