PR25 4XR - 2 bedroom semidetached house for sale in St. Annes Road, Le…

View on Property Piper

2 bedroom semi-detached house for sale in St. Annes Road, Leyland, PR25

Summary - 45 ST ANNES ROAD LEYLAND PR25 4XR

2 bed 1 bath Semi-Detached

**Standout Features:**
- Charming two-bedroom semi-detached bungalow
- No onward chain—move in without delays!
- Excellent local amenities and transport links, including Leyland train station
- Generous gated driveway and detached garage/workshop
- Private rear garden with patio ideal for relaxation or gardening
- Potential for modernization and customization

Nestled in a peaceful residential area of Leyland, this two-bedroom semi-detached bungalow is a delightful blank canvas, ideal for first-time buyers or those looking to downsize. With its advantageous location close to local shops, supermarkets, and Worden Park, you can enjoy convenience at your doorstep. The bungalow features a welcoming living room filled with natural light, a versatile secondary bedroom that could also serve as a dining room or home office, and a modern family bathroom.

Step outside to discover a manageable rear garden, perfect for outdoor dining or gardening enthusiasts, alongside a low-maintenance front garden that enhances curb appeal. The generous driveway comfortably accommodates two vehicles, leading to a detached garage/workshop with potential for conversion—a rare find! With excellent schooling options nearby and low crime rates, this property offers security, comfort, and endless potential in a sought-after location. Don't miss out on this unique opportunity—schedule your viewing today!

Property Details

Brochure Descriptions

Image Descriptions

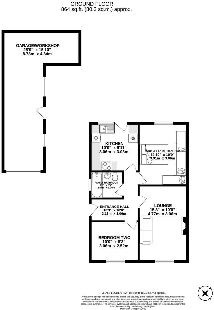
Floorplan Description

Rooms

Textual Property Features

Detected Visual Features

EPC Details

Nearby Schools

Nearest Bars And Restaurants

,,,,}

Nearest General Shops

,,}

Nearest Grocery shops

,,}

Nearest Supermarkets

,,}

Nearest Religious buildings

,,}

Nearest Medical buildings

,,,}

Nearest Leisure Facilities

,,,,}

Nearest Tourist attractions

,,}

Nearest Train stations

,,,,}

Nearest Bus stations and stops

,,,,}

Nearest Hotels

,,}

Tags

Local Market Stats

Similar Properties

Meta

High Res Images

Compatible Images

Low res Images

Thumbnails

Raw Images

High Res Floorplan Images

Compatible Floorplan Images

Low res Floorplan Images

FloorplanImages Thumbnail

Raw Floorplan Images