Chain-free, single-storey living with garage, garden and convenient local amenities.
Chain free sale with garage and shared driveway parking
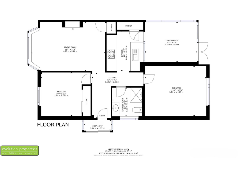
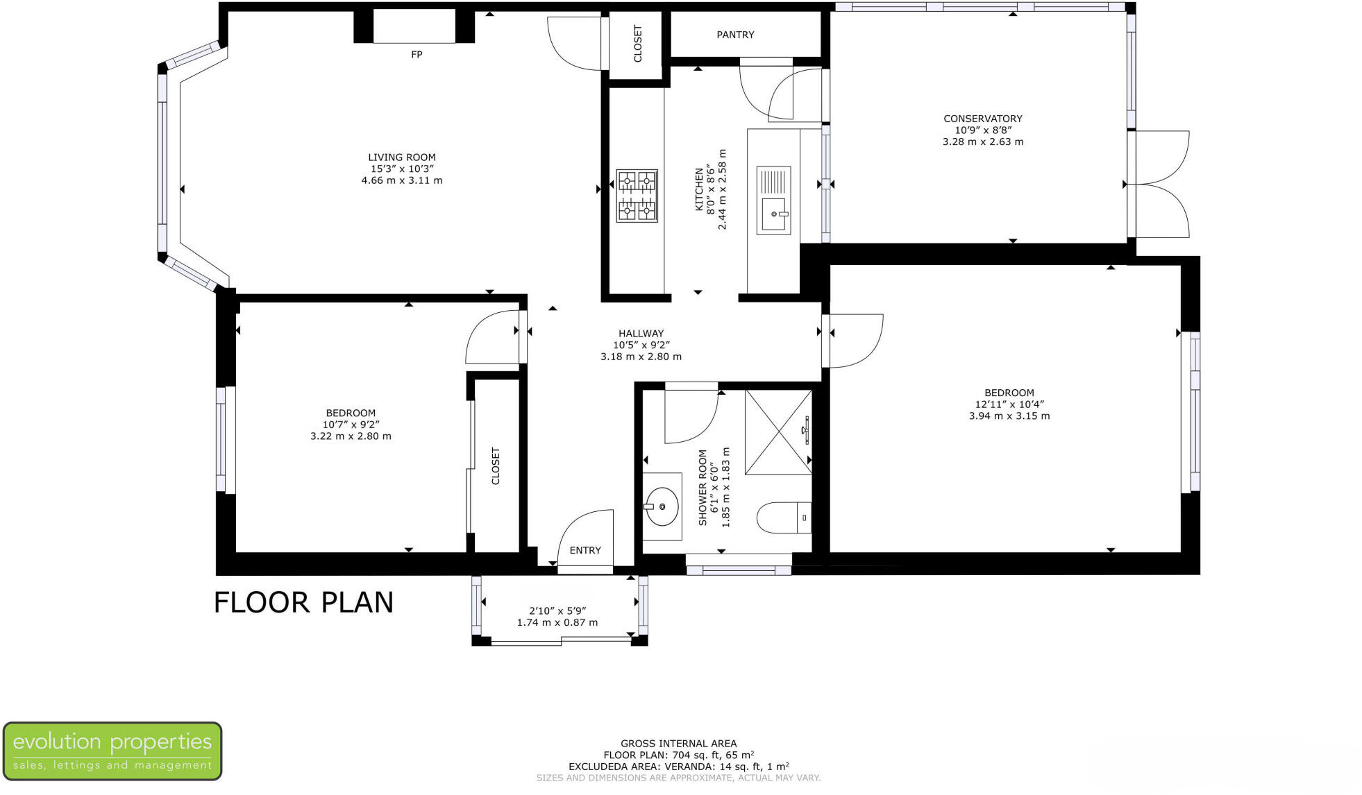
Single-storey living — large living room and conservatory to garden
Two bedrooms; main bedroom overlooks rear, second with built-in wardrobes
Newly modernised accommodation; gas central heating throughout
Double glazing installed before 2002 — may not meet current standards
Mid-century construction (1950–66); some buyers may wish to update finishes
Located near shops, buses and local amenities; fast broadband, excellent mobile signal
Area records high deprivation; crime level described as average
This tidy two-bedroom semi-detached bungalow offers single-storey convenience in a popular Kennington location, sold chain free and ready to occupy. The layout includes a large living room with a front bay window, a fitted kitchen with a conservatory off the rear, two bedrooms (one with built-in wardrobes) and a modern shower room. A garage, shared driveway and enclosed rear garden complete the plot — practical for cars and outdoor space without extensive grounds to maintain.
The property has been modernised and is presented in good order with gas central heating and double glazing. Practical features include a useful larder in the kitchen and a conservatory that provides a sheltered route to the garden. At about 700 sq ft, the bungalow is an average-sized, low-maintenance home suited to buyers who want single-floor living close to local shops, bus routes and amenities.
Buyers should note the local context: the neighbourhood records higher levels of deprivation, and the glazing installed predates 2002 (may not meet current thermal standards). Crime is described as average for the area. While the bungalow has been updated, the mid-century build (1950–66) and standard ceiling heights mean some buyers may wish to modernise certain finishes to suit personal taste.
This home will suit someone seeking a straightforward, accessible property to downsize into or to hold as a long-term owner-occupied investment. Its location near schools, public transport and local facilities adds everyday convenience, while the chain-free sale and garage/parking offer practical advantages for a quick move.
2 bedroom semi-detached bungalow for sale in Bybrook Road, Kennington, Ashford TN25, TN24 — £255,000 • 2 bed • 1 bath • 559 ft²
2 bedroom semi-detached bungalow for sale in Tritton Fields, Kennington, Ashford TN24 — £335,000 • 2 bed • 1 bath • 613 ft²
2 bedroom semi-detached bungalow for sale in Tadworth Road, Kennington, TN24 — £275,000 • 2 bed • 1 bath • 570 ft²
2 bedroom semi-detached bungalow for sale in Nettlefield, Kennington, Ashford TN24 — £350,000 • 2 bed • 1 bath • 602 ft²
2 bedroom bungalow for sale in Canterbury Road, Ashford, TN24 — £350,000 • 2 bed • 1 bath • 764 ft²
2 bedroom semi-detached bungalow for sale in Thirlmere, Kennington TN24 — £300,000 • 2 bed • 1 bath • 731 ft²






































