Modern family home in a quiet Groby cul-de-sac, close to top schools.
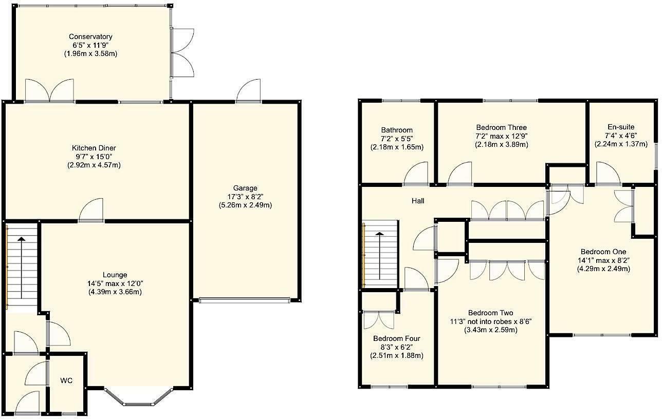
Extended four-bedroom semi-detached home with ensuite to master
This extended four-bedroom semi-detached home on a quiet Groby cul-de-sac offers practical family living with modern fittings and flexible space. The layout includes a bay-front living room, a modern kitchen-diner with room for a family table, a rear conservatory, and an ensuite to the master bedroom. A driveway, side garage and a private, well-kept rear garden complete the outside.
The house will suit families who need several double bedrooms and easy access to highly rated local schools, including nearby outstanding and good primary and secondary options. Broadband and mobile signal are strong, and there is no flood risk. Council Tax Band C keeps running costs reasonable.
Buyers should note the overall property and plot size are relatively small for a four-bedroom home, so outdoor space and some rooms may feel compact. The property sits in a generally affluent suburb with average local crime levels. The home appears move-in ready but any purchaser wanting more outdoor or internal space would need to consider extensions or reconfiguration, subject to planning.
For families seeking a modern, well-located house in Groby with off-road parking, an ensuite master and convenient school access, this home offers immediate practicality and potential to personalise over time.
4 bedroom detached house for sale in Beaumont Green, Groby, Leicester, Leicestershire, LE6 — £450,000 • 4 bed • 2 bath • 1348 ft²
4 bedroom detached house for sale in Stonelodge Road, Groby, Leicester, Leicestershire, LE6 — £395,000 • 4 bed • 2 bath • 1494 ft²
4 bedroom detached house for sale in Bluebell Drive, Groby, Leicester, Leicestershire, LE6 — £380,000 • 4 bed • 2 bath • 1503 ft²
4 bedroom detached house for sale in Bluebell Drive, Groby, Leicester, LE6 — £410,000 • 4 bed • 3 bath • 1324 ft²
4 bedroom detached house for sale in Laundon Close, Groby, Leicester, LE6 — £390,000 • 4 bed • 2 bath • 1147 ft²
4 bedroom semi-detached house for sale in Glen Park Avenue, Glenfield, Leicester, Leicestershire, LE3 — £375,000 • 4 bed • 2 bath • 1556 ft²






























































































