Spacious period apartment near Bond Street ideal for central London living or rental.
First-floor one-bedroom in a Victorian conversion, 557 sq ft
High ceilings, large windows, wood flooring, contemporary finish
Long lease: 114 years remaining
Mains gas heating with boiler and radiators; secondary glazing
Solid brick walls likely without insulation — potential upgrade needed
Service charge above average at £4,910 per year
Council tax band: expensive
Located near Bond Street, Grosvenor Square; area records very high crime levels
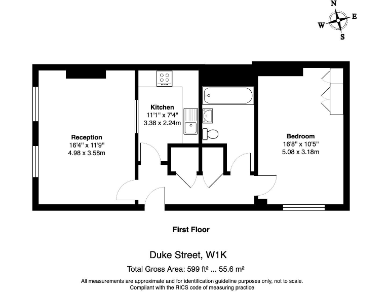
Set on the first floor of a handsome Victorian conversion on Duke Street, this one-bedroom apartment offers a rare Mayfair address with generous proportions and high ceilings. The living space benefits from large sash-style windows, wood flooring, and contemporary finishes that suit professional occupants or a central London rental let.
Practical details include a long lease of 114 years, mains gas heating via boiler and radiators, and secondary glazing. The apartment’s 557 sq ft layout provides clear storage and living space while retaining period character from the building’s pre-1900 construction.
Buyers should note the higher running costs: an above-average service charge (£4,910) and an expensive council tax band. The building has solid brick walls with assumed no insulation, and secondary glazing rather than full double glazing — considerations for thermal performance and future upgrade costs.
Location is the chief asset. Moments from Grosvenor Square, Bond Street Station, and Oxford Street, the property sits in an affluent, inner-city neighbourhood with excellent mobile and broadband connectivity, abundant amenities, and strong rental demand. However, the area records very high crime levels, which may affect some buyers’ priorities.
1 bedroom flat for sale in Duke Street, Mayfair W1K — £1,100,000 • 1 bed • 1 bath • 599 ft²
1 bedroom flat for sale in Duke Street, London, W1K — £1,100,000 • 1 bed • 1 bath • 601 ft²
1 bedroom flat for sale in Duke Street, Mayfair, W1K — £1,195,000 • 1 bed • 1 bath • 599 ft²
1 bedroom flat for sale in Duke Street, Mayfair, W1K — £1,100,000 • 1 bed • 1 bath • 603 ft²
1 bedroom flat for sale in Duke Street, Mayfair, London, W1K — £1,100,000 • 1 bed • 1 bath • 608 ft²
1 bedroom flat for sale in South Molton Street, London, W1K — £800,000 • 1 bed • 1 bath • 523 ft²


































