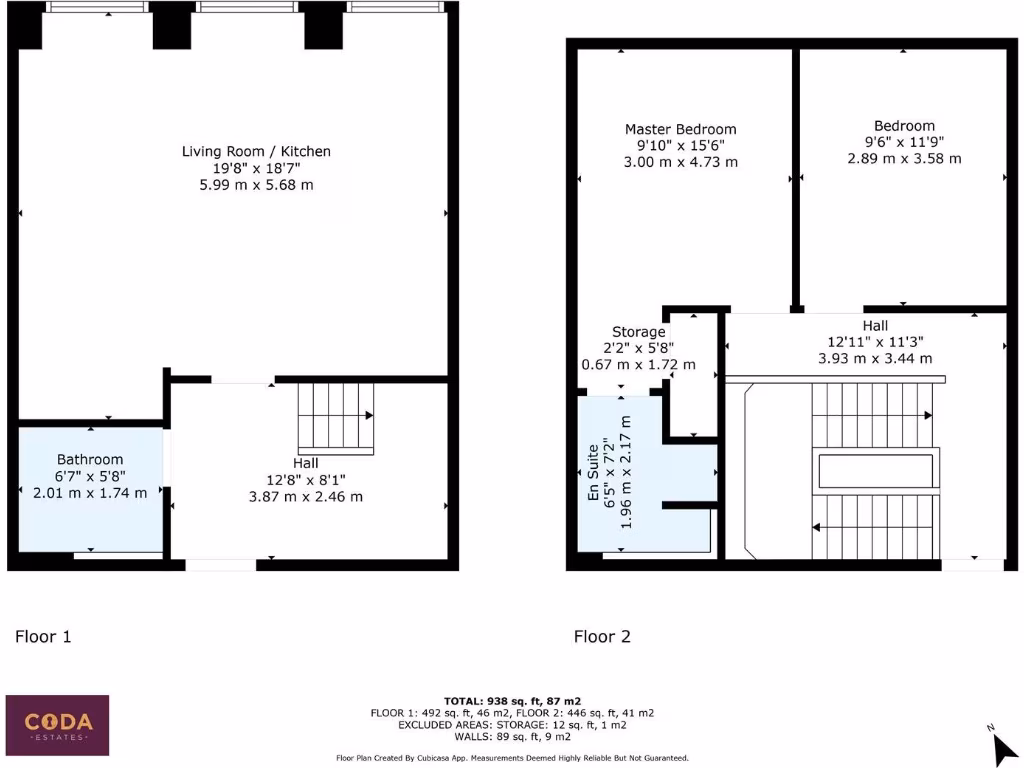
Spacious two‑bedroom split-level home with gym and allocated parking.
Iconic B‑listed Victorian building with grand entrance lobby
Set within an iconic B‑listed Victorian landmark, this two-bedroom duplex offers generous, light-filled living across 938 sq ft. The open-plan kitchen/dining/living room and high ceilings retain period character while giving a spacious, modern feel. Residents benefit from a grand entrance lobby, lift access, allocated basement parking and an on-site gym.
Practical features include double glazing, an EER band C and electric heating. The seller will pay factor fees for the first year after purchase, giving short-term cost relief. The apartment is freehold and only minutes’ walk from Glasgow city centre, universities, entertainment venues and strong transport links — ideal for a first-time buyer or buyer seeking a city-base with rental potential.
Buyers should note the building’s listed status: any alterations will require listed‑building consent and may complicate refurbishment plans. After the first year the owner will become responsible for factor charges. The property sits in a broadly student/commuter neighbourhood and the wider area is described as very deprived, which may affect long-term resale values and rental mix.
Overall this is a characterful, centrally located flat with sizeable accommodation and useful communal amenities. It suits buyers who value landmark architecture and city convenience, and those comfortable managing listed‑building constraints and potential communal fees beyond the initial year.
2 bedroom flat for sale in 95 Morrison Street, Flat 423, Tradeston, Glasgow, G5 8BS, G5 — £220,000 • 2 bed • 2 bath • 1216 ft²
2 bedroom flat for sale in Morrison Street, Glasgow, G5 — £165,000 • 2 bed • 2 bath • 871 ft²
2 bedroom flat for sale in Morrison Street, Glasgow, Glasgow City, G5 — £160,000 • 2 bed • 2 bath • 811 ft²
2 bedroom flat for sale in Morrison Street, Glasgow, G5 — £200,000 • 2 bed • 2 bath • 1076 ft²
2 bedroom flat for sale in Howard Street, Glasgow, Glasgow City, G1 — £205,000 • 2 bed • 2 bath • 935 ft²
3 bedroom flat for sale in Carnoustie Street, Glasgow, Glasgow City, G5 — £205,000 • 3 bed • 2 bath • 1377 ft²










































































































