Light-filled, characterful apartment near Greenwich and excellent transport links.
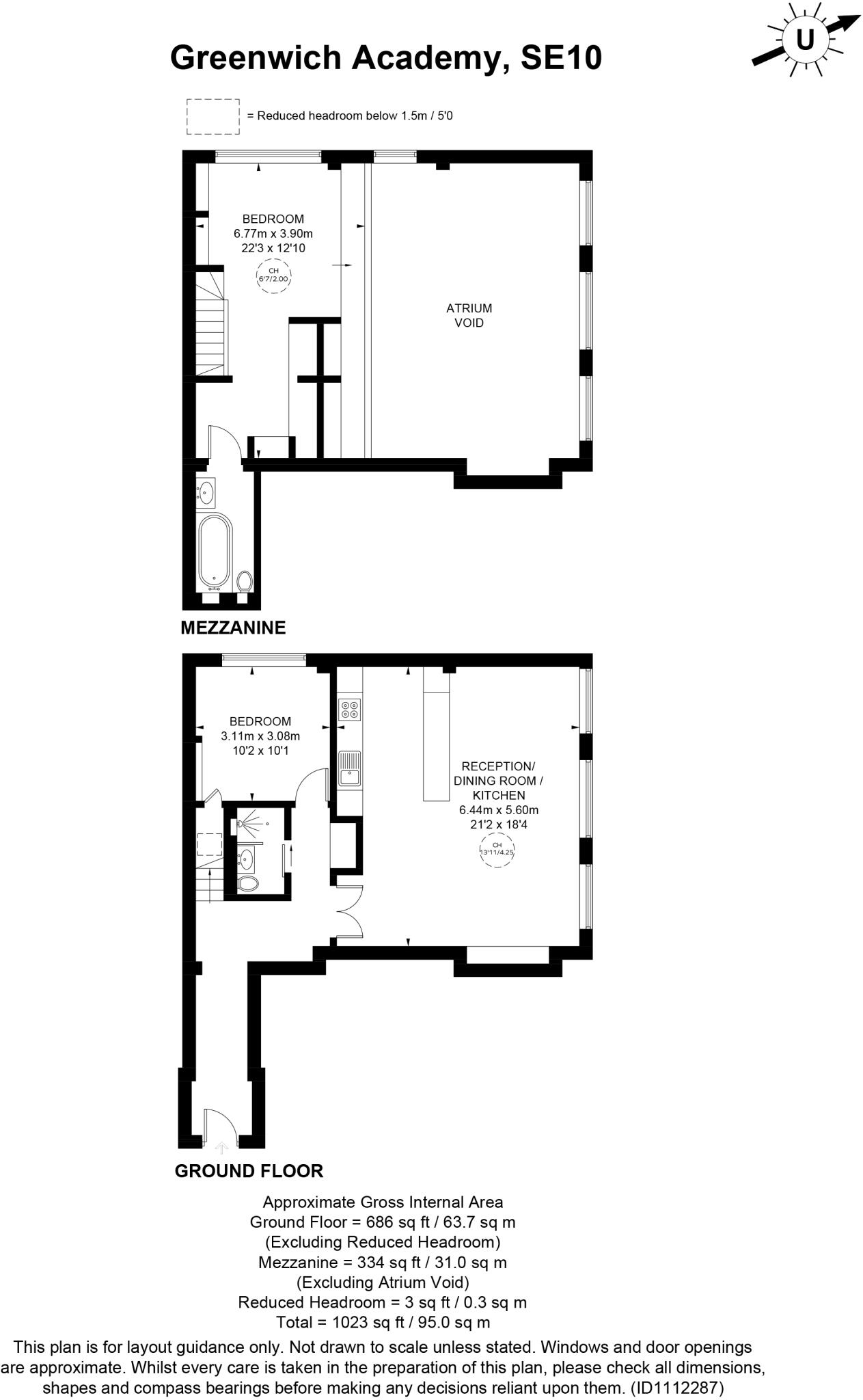
Two-bedroom mezzanine loft with dramatic double-height ceilings
Set within a landmark Victorian school conversion, this two-bedroom mezzanine apartment blends dramatic period character with recent high-quality updates. The open-plan reception with double-height ceilings and large restored classroom windows creates an impressive living space filled with natural light. Secondary acoustic glazing and newly refurbished bathrooms add comfort and finish.
Residents benefit from a gated setting with south-facing communal gardens and an allocated off-street parking space — rare for central locations. The property is share-of-freehold with an exceptionally long lease (971 years) and a sensible ground rent, making ownership straightforward for buyers seeking security and longevity.
Practical considerations include an above-average service charge and council tax; the building’s solid brick walls are likely uninsulated, which may affect heating costs despite mains gas central heating. The area provides excellent transport links to central London but records higher local crime levels, so buyers should factor personal security preferences into their decision.
This apartment will appeal to professionals or first-time buyers who value architectural individuality, generous proportions and proximity to Greenwich and Blackheath amenities. It also offers potential as a long-term investment in a historically significant conversion, provided purchasers accept the service charge and local area considerations.
3 bedroom flat for sale in Blackheath Road, London, SE10 — £800,000 • 3 bed • 2 bath • 1617 ft²
2 bedroom flat for sale in Bennett Park, Blackheath, London, SE3 — £700,000 • 2 bed • 1 bath • 832 ft²
2 bedroom apartment for sale in Old Vicarage,Greenwich, SE10 — £599,995 • 2 bed • 2 bath • 908 ft²
2 bedroom flat for sale in Tabard Centre, Bermondsey, SE1 — £1,250,000 • 2 bed • 2 bath • 1713 ft²
1 bedroom flat for sale in Greenwich South Street London SE10 — £400,000 • 1 bed • 1 bath • 572 ft²
2 bedroom apartment for sale in Dartmouth Terrace, Greenwich, London, SE10 — £524,999 • 2 bed • 2 bath • 647 ft²






















































































































