**Standout Features:**
- Charming detached house with traditional brick construction
- Four spacious double bedrooms and three modern bath/shower rooms
- Large double reception room perfect for entertaining
- Integral garage and off-road parking
- Manageable westerly-facing rear garden with a large terrace
- Located in the heart of Goodworth Clatford village, close to local amenities
**Potential Downsides:**
- No mention of significant renovations; condition details could be explored
- Current use of double glazing date unknown
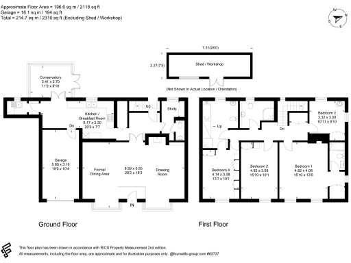
Discover the perfect family home in the vibrant village of Goodworth Clatford. This expansive four-bedroom detached property offers a blend of space and comfort, featuring a substantial double reception room that invites gatherings and a generous kitchen/breakfast area leading into a light-filled conservatory. With three well-appointed bathrooms, off-road parking, an integral garage, and a workshop/store, you'll have everything you need for modern living.
Nestled just a stone’s throw from local amenities including schools, shops, and pubs, this home is ideal for families seeking a community-centric lifestyle. Enjoy the manageable westerly garden for outdoor relaxing or entertaining, and take advantage of the countryside charm surrounding you. Easy access to Andover's wider amenities and mainline transport options further enhance its appeal.
Don’t miss out on this exclusive opportunity—properties like this in such a desirable village location are hard to come by! Contact to arrange your viewing today.
5 bedroom detached house for sale in Church Lane, Goodworth Clatford, Andover, Hampshire, SP11 — £1,250,000 • 5 bed • 3 bath • 2411 ft²
4 bedroom semi-detached house for sale in Goodworth Clatford, Andover, Hampshire, SP11 — £565,000 • 4 bed • 3 bath • 1548 ft²
2 bedroom terraced house for sale in St. Peters Close, Goodworth Clatford, Andover, Hampshire, SP11 — £420,000 • 2 bed • 2 bath • 1067 ft²
2 bedroom semi-detached house for sale in Barrow Hill, Goodworth Clatford, SP11 — £375,000 • 2 bed • 1 bath • 1023 ft²
5 bedroom detached house for sale in Goodworth Clatford, Andover, Hampshire, SP11 — £1,125,000 • 5 bed • 3 bath • 2793 ft²
3 bedroom terraced house for sale in Village Street, Goodworth Clatford, Andover, SP11 — £365,000 • 3 bed • 1 bath • 820 ft²










































































































































