Compact, low-cost flat near the beach — ideal for downsizers or holiday use.
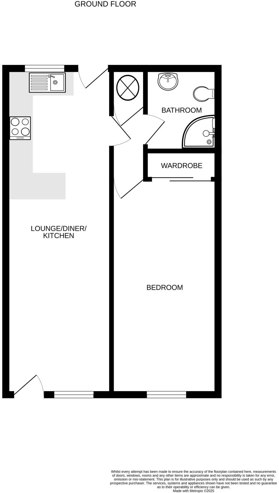
One double bedroom with open-plan living room/kitchen layout
Approx. 46 sqm (495 sq ft) — compact, easy to maintain
Level walk to Marazion town centre and the beach
Residents parking plus front patio and enclosed rear courtyard
Long lease (circa 975–999 years), low ground rent (£50pa)
Service charge £660.43pa; EPC rated E and electric heating
Flat roof and block construction; some wear and dated finishes
Sold chain free — suitable for downsizers, holiday let, or investor
This one-bedroom ground-floor apartment sits within easy, level walking distance of Marazion’s beach and town centre, offering a compact, low-maintenance base for someone looking to downsize or enjoy a seaside retreat. The main living space is open-plan with a kitchen area, and there are private outdoor spaces both front and rear — a raised patio and an enclosed courtyard — plus residents’ parking.
The long lease (approximately 975–999 years remaining), modest annual service charge and very low council tax band make running costs predictable. Fibre-to-the-cabinet broadband and good mobile signal are already in place, so the apartment is ready for modern daily use or short-term letting.
Practical considerations include an EPC rating of E and electric heating throughout; the building has a flat roof and brick/block construction. Internally the accommodation shows some wear and would benefit from updating and modernisation in places — potential buyers should note signs of dated finishes and minor damp/wear reported in the living area.
This property is straightforward: a compact, chain-free flat with long-lease security and seaside convenience that suits downsizers, holiday-home buyers or investors prepared to refresh the interior. A viewing will confirm how much cosmetic work is needed to personalise or improve rental appeal.
1 bedroom apartment for sale in Marazion TR17 — £190,000 • 1 bed • 1 bath • 442 ft²
1 bedroom ground floor flat for sale in 1 St Pirans Court - Marazion, TR17 — £250,000 • 1 bed • 1 bath • 549 ft²
1 bedroom apartment for sale in Greenbank, Penzance, Cornwall, TR18 — £175,000 • 1 bed • 1 bath • 540 ft²
1 bedroom apartment for sale in 12 Pendarves Road, Penzance, TR18 2AJ, TR18 — £119,000 • 1 bed • 1 bath • 420 ft²
3 bedroom maisonette for sale in North Street, Marazion, TR17 — £475,000 • 3 bed • 2 bath • 1115 ft²
2 bedroom end of terrace house for sale in Home with distant sea views and parking, Marazion, TR17 — £260,000 • 2 bed • 1 bath • 635 ft²






























