**Standout Features:**
- Newly renovated two-bedroom duplex flat
- Modern kitchen with ample storage and stylish backsplash
- Excellent natural light with multiple Juliet balconies
- Off-street and on-road parking available
- Prime location near River Usk and Newport city center
- Leasehold with 109 years left on the lease
**Notable Concerns:**
- High service charge: £3960 annually
- Very high crime rate in the area
- Deprived area classification
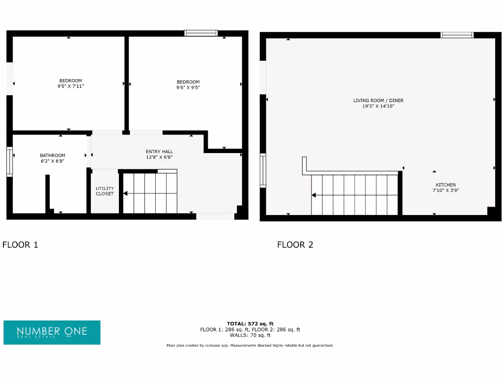
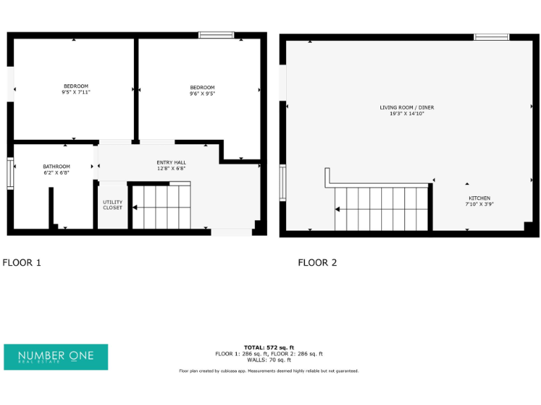
Step into modern urban living with this newly renovated two-bedroom duplex flat in Newport, perfect for first-time buyers, professionals, or investors seeking rental potential. Located just a stone’s throw from the picturesque River Usk, this well-presented property is ideal for those commuting to Cardiff, Bristol, or London—only a five-minute drive to the train station and easy access to the M4 corridor.
The impressive open-plan living area is bathed in natural light, featuring high ceilings and a flexible layout suitable for a cozy lounge and dining space. The contemporary kitchen, with glossy cabinets and ample room for appliances, is perfect for culinary enthusiasts. Both bedrooms offer comfort and style, with one boasting double doors leading to a charming Juliet balcony.
With allocated off-street parking and the bustle of Newport’s shopping and dining options at your doorstep, this apartment is your gateway to a vibrant lifestyle. Note the £3960 annual service charge and the very high crime rate in the area, factors worth considering for potential residents. Don’t miss this opportunity to make this urban gem your own!































































