No onward chain — ready for quick completion
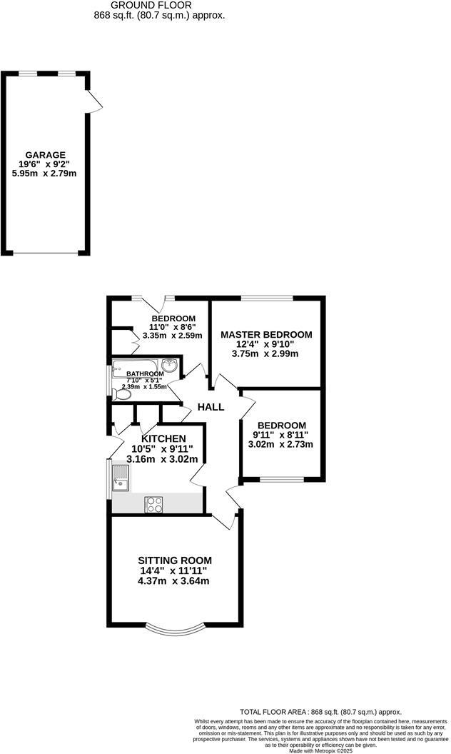
No onward chain and single-storey living make this three-bedroom bungalow an easy move for downsizers or families. The property sits on a decent plot in a quiet cul-de-sac, offering a generous rear garden, detached garage and driveway parking for several vehicles.
Internally the layout is practical: sitting room, kitchen/diner, three bedrooms and a single family bathroom. The home is largely dated and will benefit from cosmetic modernisation — updating the kitchen, bathroom and some external features will significantly increase value and comfort.
Constructed mid-20th century with cavity walls, double glazing and gas central heating to radiators, the property is freehold with low flood and crime risk. Its single-level plan and driveway parking appeal to those seeking low-maintenance, accessible living close to local schools and transport links.
Buyers should note only one bathroom and that the interior and exterior are described as fair but dated; modest refurbishment and landscaping are likely required to maximise kerb appeal and resale potential.



















































