Rare two-garage, town-centre flat ideal for convenient coastal living and commuting.
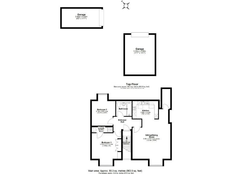
- Chain free two-bedroom penthouse
- Open-plan lounge-diner with skylit kitchen
- Master bedroom with en suite
- Two garages accessed via gated courtyard
- Approx 863 sq ft including loft conversion
- Lease c.80 years; lenders may refuse lending
- Medium flood risk in the area
- Slow broadband speeds; service charge £840 pa
This chain-free two-bedroom penthouse sits in the heart of Whitstable, just a short stroll from the High Street and train station. The apartment offers open-plan living with skylights, a substantial storage cupboard and a master en suite — well suited to first-time buyers seeking a central home with immediate convenience. The property includes two garages accessed via a gated courtyard, a rare and practical benefit in this location.
The flat measures around 863 sq ft and occupies upper-floor living created from an attic/loft conversion, bringing contemporary character and usable space. Service charge is a modest £840 per year and council tax is affordable. The town’s amenities, cafes and transport links make this a comfortable town-centre base with good local schools nearby.
Buyers should note material drawbacks: the lease has about 80 years remaining, which may limit mortgage availability and could require lease-extension costs. Flooding risk is medium and broadband speeds are reported slow, which may affect home-working. Overall the apartment offers central convenience and parking but requires awareness of lease and connectivity constraints.
2 bedroom flat for sale in Wheatley Road, Whitstable, Kent, CT5 — £339,950 • 2 bed • 2 bath • 1075 ft²
3 bedroom flat for sale in Bluefield Mews, Whitstable, CT5 — £340,000 • 3 bed • 2 bath • 1356 ft²
2 bedroom apartment for sale in Wicketts End, Whitstable, CT5 — £245,000 • 2 bed • 2 bath • 657 ft²
2 bedroom ground floor flat for sale in Olympia Way, Whitstable, Kent, CT5 — £210,000 • 2 bed • 2 bath • 437 ft²
2 bedroom apartment for sale in Wicketts End, Whitstable, CT5 — £249,950 • 2 bed • 2 bath • 663 ft²
2 bedroom flat for sale in Carlton Court, The Bridge Approach, Whitstable, CT5 — £250,000 • 2 bed • 1 bath • 704 ft²


















































































