Ready-to-live-in family home near parks and town links.
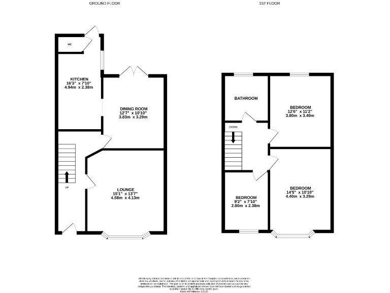
- Three bedrooms and family bathroom, suitable for family or let
- Bay-front lounge and separate dining room opening to kitchen
- Front and rear gardens plus attached garage
- Ground-floor WC and practical two-storey layout
- EPC Band D (score ~64) — scope for efficiency upgrades
- Average room sizes for a 1930s terraced home
- Close to schools, green spaces and A43/A45 road links
- Tenure freehold; flood risk listed as none
A well-presented three-bedroom terrace arranged over two floors, this property combines traditional 1930s character with a practical family layout. The front lounge with bay window and separate dining room opening into the kitchen creates a comfortable living and entertaining space. Outside there are front and rear gardens plus an attached garage, and nearby green spaces include Bradlaugh Fields and The Racecourse.
Internally the rooms are average in size for a town terrace and the presentation is tidy throughout, making the house ready to move into or straightforward to let. There is a ground-floor WC, three first-floor bedrooms and a family bathroom. The overall internal area is about 1,228 sq ft and the plot provides a decent private garden for outdoor dining and exercise.
Running costs are moderate: the reported EPC is around Band D (score 64), so there is clear scope to improve efficiency by upgrading loft insulation, glazing or the boiler. Buyers should note this is a mid-terrace property with typical room proportions rather than large open-plan spaces. Exact measurements and condition specifics should be confirmed at inspection.
Positioned in a quiet residential stretch of Kettering Road, the house is close to local shops, cafés, good schools and direct road routes (A43/A45) into Northampton town centre. This makes it suitable for first-time buyers, small families or investors looking for a central, low-crime neighbourhood with good broadband and mobile signal.
3 bedroom end of terrace house for sale in Thomas Chapman Grove, Southbridge, Northampton, NN4 — £290,000 • 3 bed • 1 bath • 822 ft²
3 bedroom terraced house for sale in Kingsley Road, Kingsley, Northampton NN2 — £265,000 • 3 bed • 1 bath • 949 ft²
3 bedroom terraced house for sale in The Drive, Phippsville, Northampton, NN1 — £295,000 • 3 bed • 2 bath • 1068 ft²
3 bedroom end of terrace house for sale in Tewkesbury Close, Northampton, NN4 — £285,000 • 3 bed • 1 bath • 611 ft²
3 bedroom terraced house for sale in Greenfield Road, Spinney Hill, Northampton, Northamptonshire, NN3 — £280,000 • 3 bed • 1 bath • 922 ft²
3 bedroom terraced house for sale in Cedar Road East, Northampton, NN3 — £280,000 • 3 bed • 1 bath • 1278 ft²


































































