**Standout Features:**
- Charming stone-built cottage currently functioning as a successful holiday let
- Flexible use: owner-occupied, holiday rental, or combination
- Enclosed private garden ideal for dogs
- Fully furnished and equipped with modern kitchen and dining area
- Allocated off-street parking
- Located just 1.5 miles from Alnwick town center, known for its rich heritage and amenities
- Easy access to the picturesque Northumberland coastline and Alnwick Castle
- Chain-free and freehold tenure, available immediately
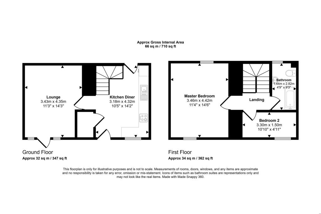
Discover East Havers, an immaculately presented two-bedroom cottage that beautifully marries countryside charm with modern comforts. Perfect for investors, families, or individuals seeking a tranquil Northumbrian retreat, this property offers incredible flexibility for personal use and holiday letting. The bright and spacious interior includes a contemporary open-plan kitchen and cozy lounge, along with an inviting garden that’s pet-friendly and perfect for summer gatherings.
Located on the edge of historic Alnwick, you’ll enjoy access to an array of local amenities, culture, and award-winning attractions, including Alnwick Castle and Gardens. With excellent schools nearby, a thriving community, and easy transport links including the A1 and Alnmouth Train Station, East Havers is poised for a promising future.
While the average mobile signal and slow broadband speeds may require consideration, they do not detract from the overall appeal of this property. An early viewing is recommended to grasp the unique lifestyle and investment potential that awaits you at this exceptional cottage. Don’t miss this opportunity to own a piece of the picturesque Northumberland countryside!
2 bedroom semi-detached house for sale in Cloister Cottage, Ellingham Hall, NE67 — £325,000 • 2 bed • 1 bath • 727 ft²
4 bedroom detached bungalow for sale in Dalbeattie House, Oaky Balks, Alnwick, Northumberland, NE66 — £800,000 • 4 bed • 3 bath • 2110 ft²
2 bedroom terraced house for sale in Clayport Gardens, Alnwick, NE66 — £130,000 • 2 bed • 1 bath • 613 ft²
2 bedroom terraced house for sale in Chathill Farm Cottages, Chathill, NE67 — £158,000 • 2 bed • 1 bath
3 bedroom terraced house for sale in Bridge Street, Alnwick, Northumberland, NE66 — £280,000 • 3 bed • 1 bath • 550 ft²
4 bedroom cottage for sale in 44 and 44a North End, Longhoughton, Alnwick, Northumberland, NE66 — £650,000 • 4 bed • 3 bath • 762 ft²


























































