Spacious contemporary apartment with concierge and excellent transport links.
Wraparound balcony with direct River Thames views
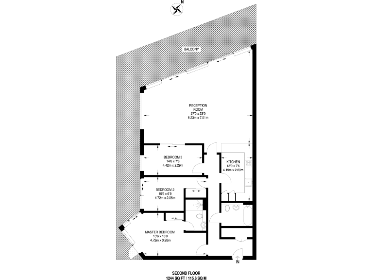
Located on the second floor of Ensign House, this three-bedroom apartment delivers contemporary riverside living with broad Thames views from a wraparound balcony. The open-plan reception and dining area is bright and spacious, with floor-to-ceiling glazing and high ceilings creating an easy, sociable layout that flows to the balcony.
The accommodation includes a fitted kitchen with integrated appliances and breakfast bar, a master bedroom with fitted wardrobe and en suite shower, plus two further good-sized bedrooms and a smart family bathroom. Communal amenities include secure entry, concierge, lift and on-site leisure facilities — useful for families and professionals alike.
Practical points: the flat is leasehold with 977 years remaining, built in the mid-2000s and double-glazed. Service charges and ground rent are material costs to factor in (£5,550 service charge; £550 ground rent). The apartment is well placed for Wandsworth Town, local schools and river transport links, offering an attractive, low-risk riverside home or rental opportunity.
3 bedroom flat for sale in Ensign House, Battersea Reach, Battersea, London, SW18 — £1,075,000 • 3 bed • 2 bath • 1306 ft²
3 bedroom flat for sale in Ensign House,
Juniper Drive, SW18 — £1,600,000 • 3 bed • 2 bath • 1353 ft²
3 bedroom flat for sale in Ensign House, Juniper Drive, London, SW18 — £1,075,000 • 3 bed • 1 bath • 1295 ft²
3 bedroom flat for sale in Juniper Drive, Battersea Reach, SW18 — £1,075,000 • 3 bed • 2 bath • 1306 ft²
3 bedroom flat for sale in Coda Residences, Battersea, LONDON, SW11 — £1,500,000 • 3 bed • 2 bath • 1044 ft²
3 bedroom apartment for sale in Juniper Drive, London, SW18 — £1,425,000 • 3 bed • 2 bath • 1205 ft²


































































































