Village-edge living with school catchment and convertible expansion potential.
Cotswold stone detached house with countryside views
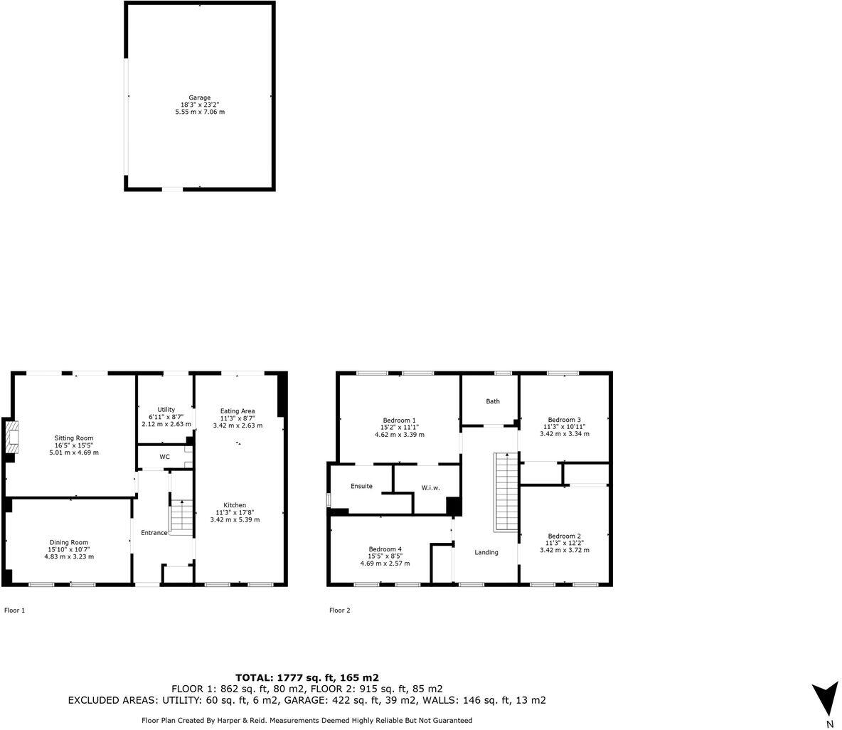
Four bedrooms plus ensuite and large walk-in wardrobe
Two generous reception rooms and modern kitchen island
Double garage with remote door and off-road parking
Planning permission to add two loft bedrooms and garage conversion
Oil-fired heating; external oil tank and boiler/radiators
Shared driveway access with two neighbouring properties
Council tax rated expensive; routine stone/roof inspection recommended
This well-presented four-bedroom detached house in Greatworth combines Cotswold stone charm with thoughtful modern improvements, ideal for families seeking village life with countryside views. Two generous reception rooms and a large kitchen/breakfast room create flexible living and entertaining space, while a walk-in wardrobe and ensuite serve the principal bedroom.
Externally the plot is generous for the village, with a south-facing rear garden, paved patio and high-quality artificial grass. A double garage with remote door, off-road parking and eaves storage add practical vehicle and storage options; access is via a shared driveway with two neighbouring properties. Planning permission is already granted to convert the loft into two extra bedrooms and to create accommodation over the garage, offering clear scope to increase space and value.
Practical notes: the home is oil-fired with an external oil tank and boiler/radiators, and double glazing installed before 2002. Council tax is high. Broadband and mobile signal are strong and the village has low crime, a popular primary school and useful local amenities including a shop and pub. Buyers should budget for routine roof and stonework inspection and any future maintenance associated with older stone construction.
5 bedroom detached house for sale in Byfield Road, Chipping Warden, Banbury, OX17 — £695,000 • 5 bed • 4 bath • 2498 ft²
4 bedroom semi-detached house for sale in Helmdon Road, Greatworth, Banbury, OX17 — £500,000 • 4 bed • 2 bath • 1815 ft²
4 bedroom detached house for sale in Vine End, Paulerspury, NN12 — £675,000 • 4 bed • 3 bath • 1658 ft²
4 bedroom house for sale in Shepherds Close, Weston-On-The-Green, OX25 — £850,000 • 4 bed • 2 bath • 1813 ft²
5 bedroom detached house for sale in Hardwick, Bicester, OX27 — £900,000 • 5 bed • 3 bath • 2478 ft²
4 bedroom detached house for sale in The Old Granary, Stoke Bruerne, NN12 — £795,000 • 4 bed • 2 bath • 1932 ft²


























































































































