Spacious, low-maintenance home moments from Wilmslow centre and transport links.
- Chain-free penthouse duplex across two top floors
- Principal bedroom with en suite and built-in wardrobes
- Miele kitchen, granite worktops, Velux windows
- Lift to third floor; boarded loft with ladder and light
- Gated allocated parking with EV charging point
- Leasehold: 970 years; service charge £687/quarter, ground rent £122/year
- No pets allowed
- Local crime level recorded as high (buyer to verify)
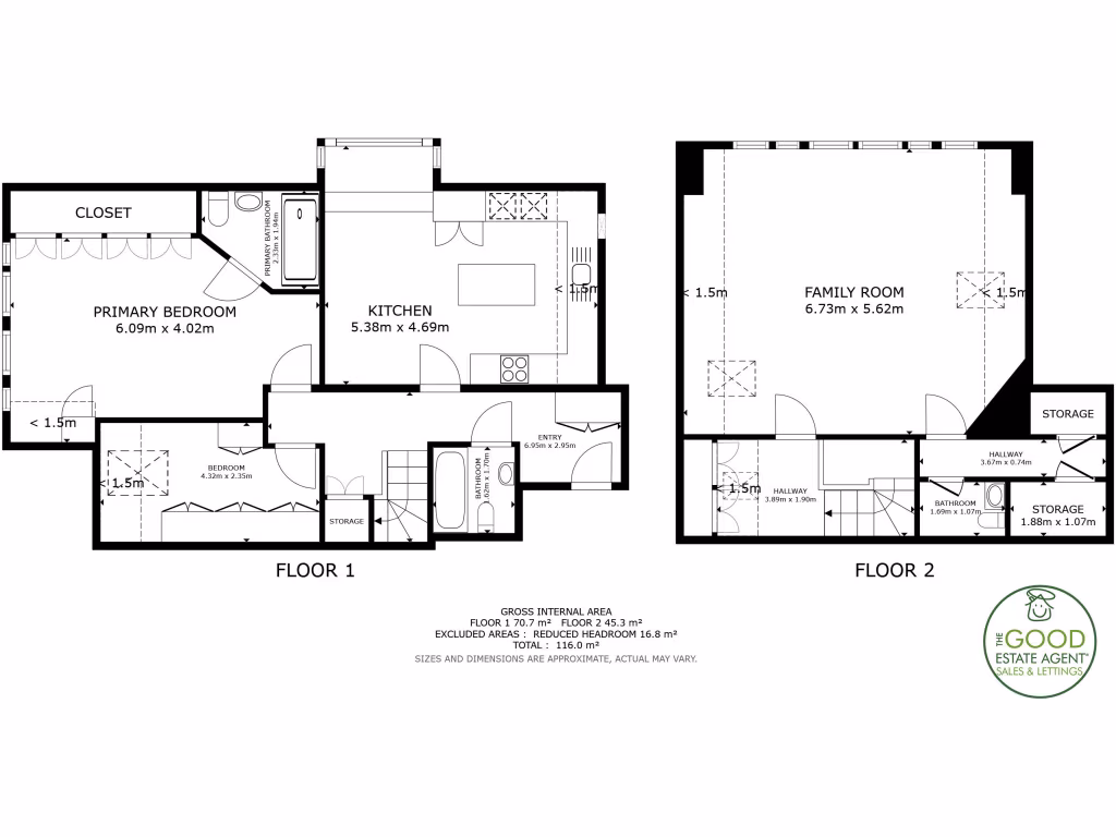
A bright, chain-free duplex penthouse in central Wilmslow, this two-bedroom apartment occupies the top two levels with expansive living space and far-reaching views towards the Pennines. The property is presented in excellent order and benefits from generous storage, boarded loft, and large principal bedroom with a modern en suite.
The kitchen is a key selling point: a fitted Miele-equipped space with granite worktops, induction hob, integrated appliances and Velux windows that flood the room with light. The open-plan lounge/dining room is comfortable for entertaining and daily living, while a guest WC and separate bathroom add convenience.
Practical features include lift access to the third floor, gated allocated parking with EV charging point, secure video entry and a long lease (970 years). Note the apartment is leasehold with a quarterly service charge (£687) and annual ground rent (£122). Pets are not permitted.
Buyers should also be aware of local considerations: the listing records a high local crime statistic, and the property is in a very affluent area where running costs and parking demand can be higher. Overall this is a premium, low-maintenance home well suited to downsizers or professionals seeking a central Wilmslow base with strong lifestyle amenities.
3 bedroom penthouse for sale in Osborne House, Alderley Road, Wilmslow, SK9 — £690,000 • 3 bed • 2 bath • 1475 ft²
2 bedroom penthouse for sale in Penthouse Apartment on Hawthorn Lane, Wilmslow, SK9 — £550,000 • 2 bed • 2 bath • 2402 ft²
2 bedroom penthouse for sale in Macclesfield Road, Wilmslow, Cheshire, SK9 — £345,000 • 2 bed • 1 bath • 961 ft²
3 bedroom duplex for sale in Station Road, Wilmslow, SK9 — £330,000 • 3 bed • 2 bath • 1261 ft²
3 bedroom apartment for sale in Central Place, Station Road, Wilmslow, SK9 1BU, SK9 — £299,950 • 3 bed • 2 bath • 1195 ft²
2 bedroom apartment for sale in Altrincham Road, Wilmslow, SK9 — £250,000 • 2 bed • 2 bath • 660 ft²


































































































































