Spacious five-bedroom home close to town, station and independent shops.
- Five double bedrooms across four floors, including one en-suite
- Bespoke Shaker kitchen with island and integrated appliances
- Ground-floor gym, utility and shower room with garden access
- Landscaped rear garden with porcelain tiles, decking and gazebo
- Gravel driveway and garage with ample off-street parking
- Large cellar providing substantial additional storage space
- EPC D; double glazing pre-2002 and cavity walls assumed uninsulated
- Council Tax band above average (higher running costs)
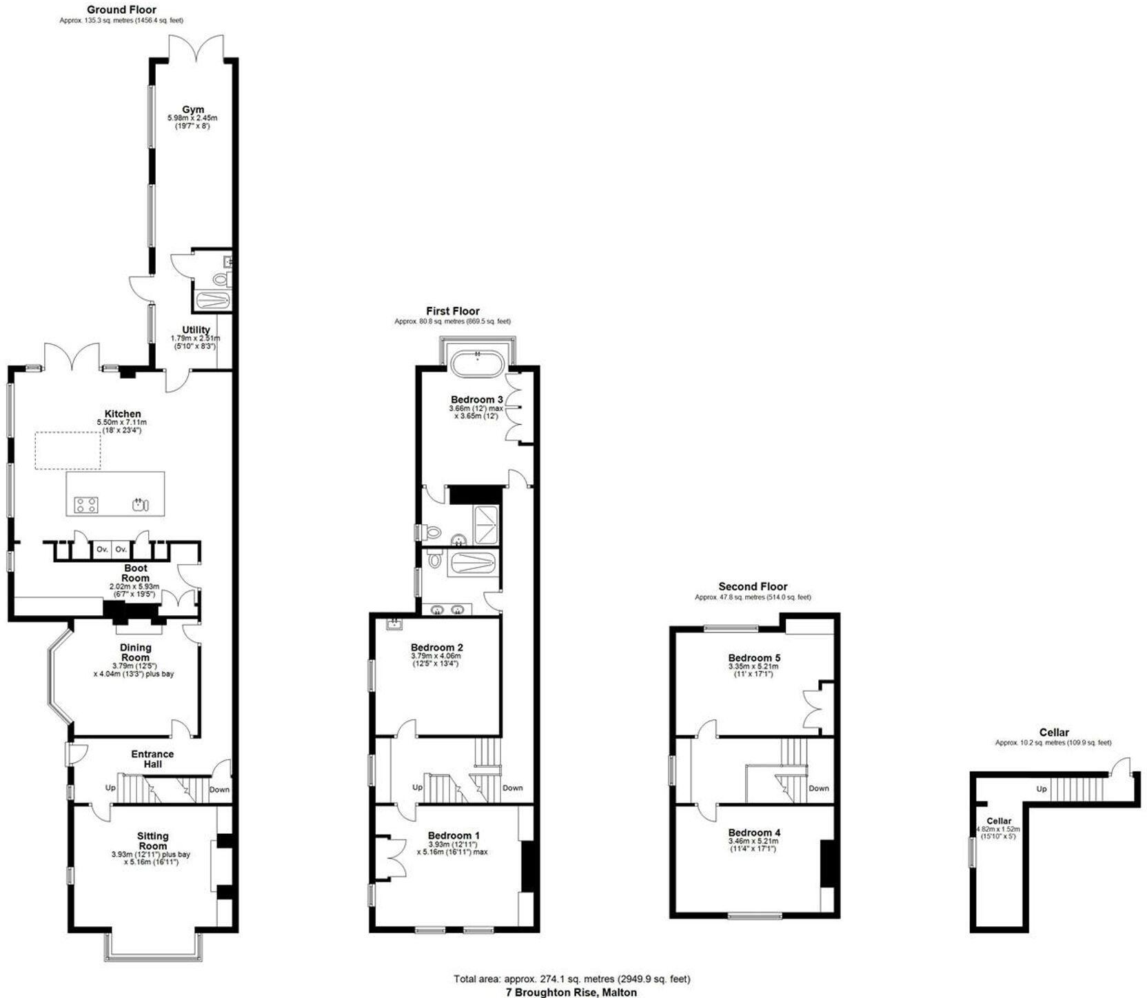
A beautifully restored five-bedroom Victorian villa arranged over four floors, situated within easy walking distance of Malton town centre and the railway station. Original features — cast iron fireplaces, ornate cornicing and a tiled hallway — sit alongside a bespoke Shaker kitchen with island and Silestone worktops to deliver period character with modern convenience. The layout includes two elegant reception rooms, a versatile ground-floor gym with shower, and a large cellar for storage.
The principal suite and three further double bedrooms on the upper floors offer flexible family accommodation; two additional double bedrooms occupy the second floor. The rear garden is landscaped with a porcelain-tiled terrace, decked dining area, gazebo and twin-tiered lawns with apple and olive trees — an easy-care, private outdoor space. A gravel driveway and garage provide substantial off-street parking.
Practical details are straightforward: mains gas boiler and radiators, double glazing installed before 2002 and a Council Tax band above average. The property has an EPC rating of D and cavity walls are shown as built without added insulation (assumed), so there may be opportunities to improve energy efficiency. Newly renovated throughout, the house offers ready-to-live-in comfort with scope for further upgrading if desired.
This home will suit families seeking generous, characterful living close to local schools, independent shops and cafés, or buyers wanting a landmark town residence with flexible rooms for home working, gym use or guest accommodation. Its size, finish and location make it a rare offering in this very affluent market town.
4 bedroom semi-detached house for sale in 66 Newbiggin, Malton, YO17 7JF, YO17 — £445,000 • 4 bed • 2 bath • 2046 ft²
6 bedroom house for sale in Devonshire House, Castle Howard Road, Malton, YO17 — £1,100,000 • 6 bed • 6 bath • 4356 ft²
4 bedroom detached house for sale in 2 Orchard Gardens, Malton, YO17 7NA, YO17 — £945,000 • 4 bed • 3 bath • 2823 ft²
3 bedroom terraced house for sale in Middlecave Road, Malton, YO17 — £295,000 • 3 bed • 1 bath • 1225 ft²
6 bedroom detached house for sale in Orchard Gardens, Malton, North Yorkshire, YO17 — £1,000,000 • 6 bed • 3 bath • 3075 ft²
5 bedroom house for sale in Town Street, Old Malton, Malton, YO17 — £675,000 • 5 bed • 2 bath • 2625 ft²






























































































































































































































