Move-in-ready semi in excellent school catchment and commuter location.
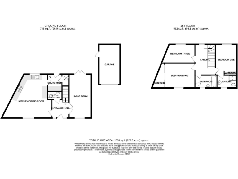
- Three double bedrooms, master bedroom with en-suite
- Feature triangular kitchen/dining room, spacious and flexible
- Enclosed, low-maintenance rear garden with patio
- Single garage with power and driveway parking
- Built 2012; double glazing and gas central heating
- Small plot size; limited external storage and garden space
- Annual service charge £264 for communal maintenance
- No forward chain; move-in ready condition
A modern three-double-bedroom semi detached home built in 2012, set a short walk from St Ives town centre and local schools. The house is well presented with a generous, unusual triangular kitchen/dining room, separate living room, utility and cloakroom — practical spaces that suit busy households and first-time buyers wanting room to grow.
Practical benefits include an en-suite to the master, double glazing, gas central heating, driveway parking and a single garage with power and rear access. The enclosed rear garden is low-maintenance and the property sits within Hemingford Grey junior school catchment. Commuters will appreciate easy access to the A14/M11 and Huntingdon station for fast links to Cambridge and London.
This is offered with no forward chain and has been looked after well, making it move-in ready for many buyers. Notable ongoing costs include a below-average annual service charge of £264 for communal upkeep and standard council tax. The plot is relatively small and the garage is a single bay, which may limit external storage or parking for larger households.
Overall, this house offers a modern, comfortable base in an affluent, low-crime area with excellent connectivity — a strong option for first-time buyers seeking size, school catchment and commuter convenience without heavy renovation work.
3 bedroom semi-detached house for sale in Valiant Road, St. Ives, PE27 — £300,000 • 3 bed • 1 bath • 689 ft²
3 bedroom town house for sale in Garner Drive, St. Ives, PE27 — £340,000 • 3 bed • 2 bath • 1200 ft²
3 bedroom semi-detached house for sale in Knights Way, St. Ives, Cambridgeshire, PE27 6TB, PE27 — £375,000 • 3 bed • 2 bath • 1115 ft²
3 bedroom terraced house for sale in The Brambles, Limes Park Road, St. Ives, PE27 — £350,000 • 3 bed • 1 bath • 639 ft²
3 bedroom detached house for sale in Constable Road, St. Ives, Cambridgeshire, PE27 — £375,000 • 3 bed • 1 bath • 705 ft²
3 bedroom semi-detached house for sale in Greenfields, St. Ives, Cambridgeshire, PE27 — £320,000 • 3 bed • 1 bath • 784 ft²






















































