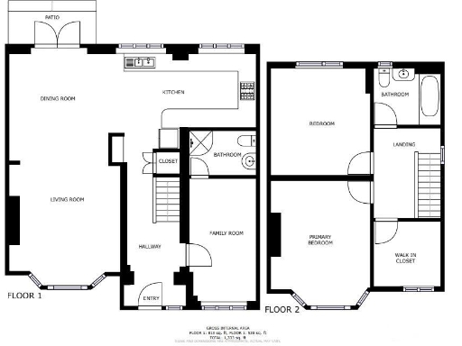
**Standout Features:**
- Newly renovated, modern finishes throughout
- Four spacious bedrooms, including an ensuite
- Open-plan kitchen diner, extended for added space
- Generous lounge for family relaxation
- Off-street parking for multiple vehicles
- Landscaped rear garden, ideal for outdoor entertaining
- Low crime area with excellent mobile and broadband connectivity
This impeccably renovated four-bedroom semi-detached home in Margate is a perfect retreat for families seeking comfort and modern living. The expansive open-plan kitchen diner is the heart of the home, ideal for family gatherings and entertaining. With a cozy lounge and four generous bedrooms—one with its own ensuite—the property offers ample space for everyone. Enjoy the beautifully landscaped rear garden, a peaceful sanctuary for outdoor fun and relaxation.
Located in a well-regarded area with access to good schools, this home is also just a short drive from the stunning sandy beaches and vibrant attractions of Margate. Off-street parking for multiple vehicles adds convenience, while excellent mobile signal and fast broadband cater to modern lifestyles. Although the plot size is decent, this charming family home provides a wonderful blend of contemporary design and suburban tranquility, making it an ideal choice for first-time buyers and families alike. Don't miss the chance to make this dreamy find your own—such opportunities are rare in this desirable locale!
3 bedroom semi-detached house for sale in Nash Court Gardens, Margate, Kent, CT9 — £315,000 • 3 bed • 1 bath • 841 ft²
4 bedroom semi-detached house for sale in Nash Lane, Margate, CT9 — £400,000 • 4 bed • 2 bath • 1563 ft²
3 bedroom semi-detached house for sale in Westfield Road, Margate, CT9 — £350,000 • 3 bed • 1 bath • 924 ft²
2 bedroom semi-detached house for sale in Lister Road, Margate, CT9 4AE, CT9 — £280,000 • 2 bed • 1 bath • 994 ft²
3 bedroom semi-detached house for sale in Kent Road, Margate, CT9 — £290,000 • 3 bed • 1 bath • 936 ft²
5 bedroom semi-detached house for sale in Addiscombe Road, Margate, Kent, CT9 — £625,000 • 5 bed • 2 bath • 2033 ft²






























































