**Standout Features:**
- Spacious 2-bedroom semi-detached bungalow
- Quiet cul-de-sac location in Dersingham
- Enclosed rear garden with patio and grass areas
- Gas-fired central heating; UPVC double glazing throughout
- Garage and driveway for ample parking
- Close to village amenities including schools, shops, and transportation
**Potential Concerns:**
- Requires updating and renovation throughout
- Dated decor in living spaces
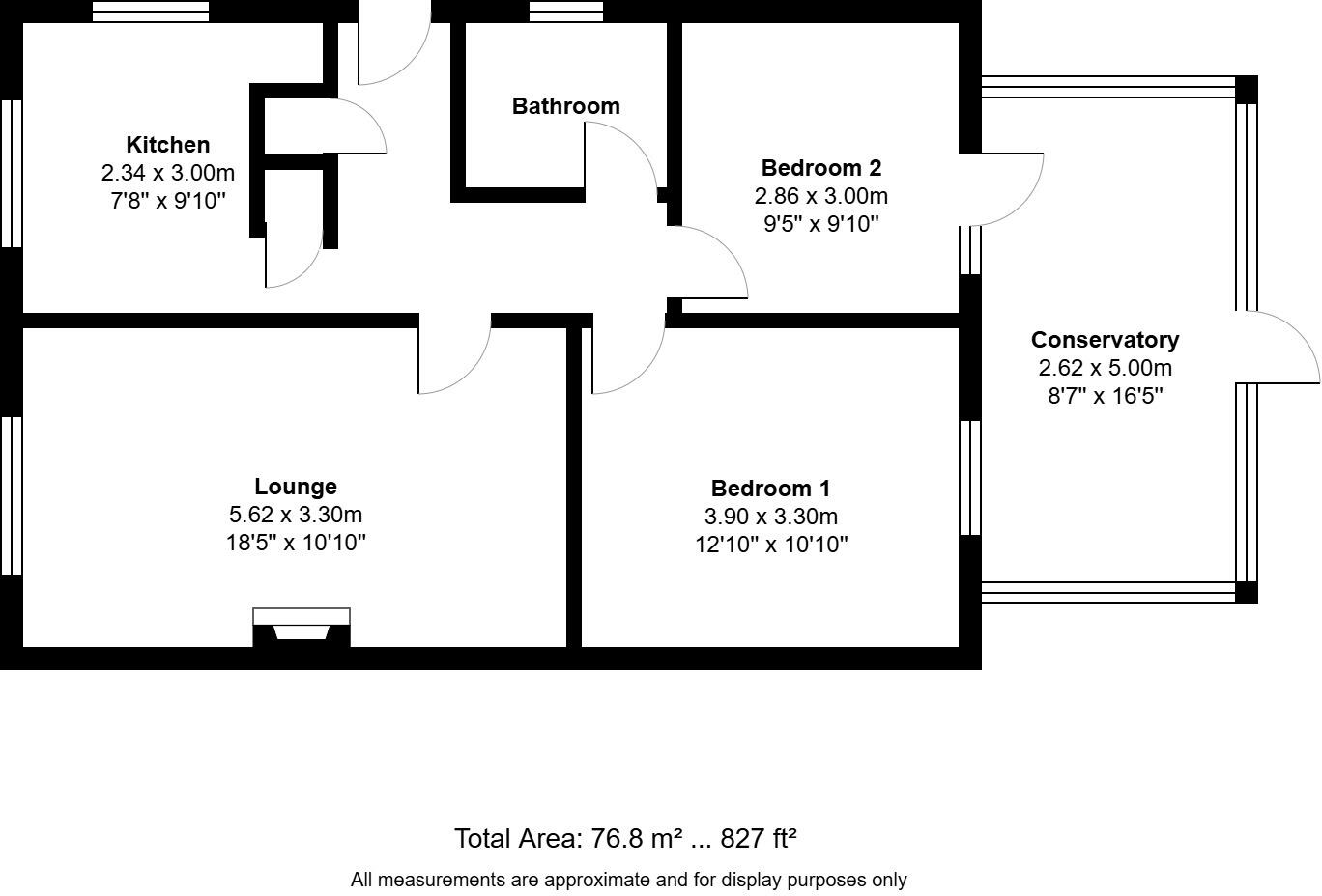
This charming 2-bedroom bungalow in the peaceful village of Dersingham offers an ideal opportunity for families or first-time buyers looking to create their dream home. With a generous layout totaling 827 square feet, the property features a welcoming entrance hall, a spacious sitting/dining room with a picture window and fireplace, and two bedrooms that overlook the rear garden. The kitchen includes essential amenities with potential for modern updates.
The low-maintenance enclosed garden, along with the garage and driveway, provide convenient outdoor and parking options. Situated in a low-crime area and only a short walk from local amenities, including good-rated primary schools, this property presents a safe and comfortable setting for families.
Although the bungalow requires renovation, it offers the chance to personalize and enhance the living space to suit your lifestyle. Don't miss out on the potential this home holds—properties in this desirable area, which boasts proximity to the stunning North Norfolk coastline and attractions like the Sandringham Estate, are not likely to stay on the market long. Secure your viewing today!
2 bedroom semi-detached bungalow for sale in Queen Elizabeth Drive, Dersingham, PE31 — £240,000 • 2 bed • 1 bath • 648 ft²
2 bedroom semi-detached bungalow for sale in Queen Elizabeth Drive, Dersingham, PE31 — £230,000 • 2 bed • 1 bath • 665 ft²
3 bedroom semi-detached bungalow for sale in Kings Croft, Dersingham, PE31 — £250,000 • 3 bed • 2 bath • 917 ft²
2 bedroom detached bungalow for sale in West Hall Road, Dersingham, King's Lynn, Norfolk, PE31 — £250,000 • 2 bed • 1 bath • 668 ft²
2 bedroom detached bungalow for sale in Tudor Way, Dersingham, King's Lynn, Norfolk, PE31 — £250,000 • 2 bed • 1 bath • 862 ft²
2 bedroom detached bungalow for sale in Wallace Twite Way, Dersingham, PE31 — £250,000 • 2 bed • 1 bath • 769 ft²














































