Spacious riverside apartment with concierge, balcony and strong local schools.
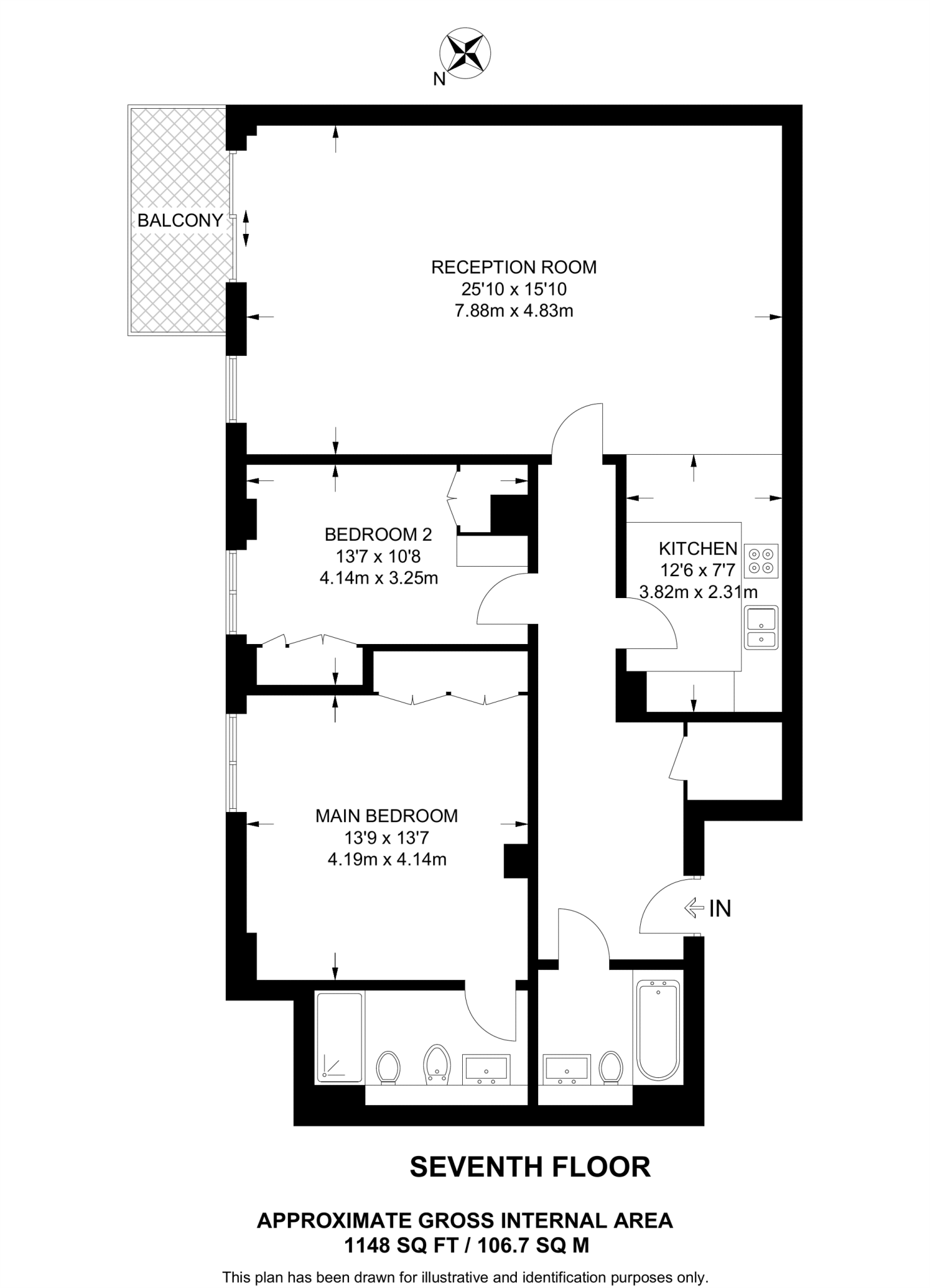
Large 1,148 sq ft seventh-floor apartment with open-plan reception space
Set on the seventh floor of a modern riverside development, this large two-bedroom apartment offers bright, contemporary living across approximately 1,148 sq ft. A private balcony looks over the courtyard with partial river views, and open-plan reception space provides room to dine and entertain.
The property includes two double bedrooms with fitted wardrobes, a main bathroom and an ensuite shower room; glazed windows and contemporary finishes date from the 2007–2011 build. Residents benefit from 24-hour concierge, communal gardens and a riverside location a short walk from Imperial Wharf Overground and local amenities in Fulham.
Practical points to note: the flat is leasehold and served by a community heating scheme, which can limit individual controls and may affect running costs. Prospective buyers should review the lease length, service charge and any communal maintenance budgets before committing.
This apartment will suit buyers seeking a low-maintenance, well-located riverside home with generous internal space—particularly professionals and families wanting easy access to transport, parks and strong local schools.
2 bedroom flat for sale in Regal House, Imperial Wharf, London, SW6 — £775,000 • 2 bed • 2 bath • 804 ft²
2 bedroom flat for sale in Imperial Wharf, Imperial Wharf, London, SW6 — £750,000 • 2 bed • 2 bath • 956 ft²
2 bedroom flat for sale in Imperial Wharf, London, SW6 — £895,000 • 2 bed • 2 bath • 964 ft²
2 bedroom apartment for sale in The Boulevard, Imperial Wharf, SW6 — £825,000 • 2 bed • 2 bath • 1111 ft²
2 bedroom flat for sale in Imperial Wharf, Imperial Wharf, London, SW6 — £1,200,000 • 2 bed • 2 bath • 1172 ft²
2 bedroom flat for sale in Lensbury Avenue, London, SW6 — £575,000 • 2 bed • 2 bath • 747 ft²






















































































































































































































