Practical three-bed with garage and parking near schools and bus routes.
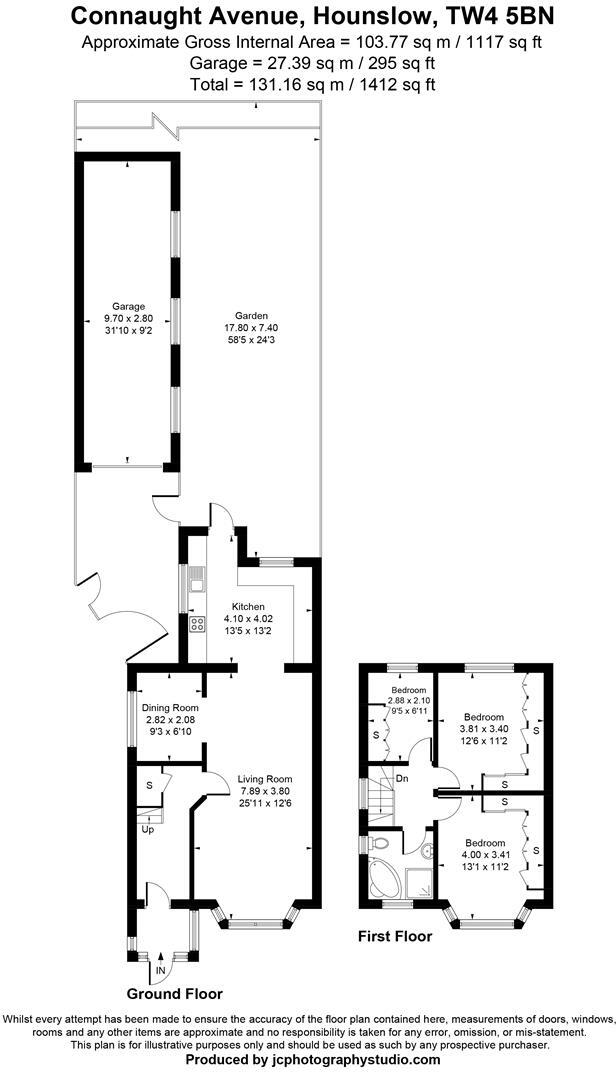
Extended L-shaped through lounge/diner
This extended three-bedroom semi-detached house offers practical family accommodation in a well-connected Hounslow location just off Staines Road. The ground floor features an L-shaped through lounge/diner and an extended kitchen; upstairs are three bedrooms and a single family bathroom. The property benefits from double glazing and gas central heating throughout.
Outside there is a decent rear garden, a detached double-length garage accessed via a shared driveway and block-paved off-street parking for at least two cars. The plot and parking provision are strong practical advantages for families with cars or for buyers seeking storage and garaging space.
The house is a 1930s build with some dated fixtures and decoration and will benefit from modernisation to unlock its full potential. EPC rating D and solid brick walls (assumed uninsulated) indicate potential energy-improvement works. Note the area has higher crime levels and local deprivation indicators, and the property is in Council Tax Band E; these factors may influence running costs and lifestyle choices. Overall this is a straightforward family home with good size, useful parking and clear scope for improvement and value uplift.
3 bedroom semi-detached house for sale in Hounslow, TW3 — £730,000 • 3 bed • 2 bath • 1205 ft²
3 bedroom semi-detached house for sale in Hounslow Road, Hanworth, Feltham, TW13 — £550,000 • 3 bed • 2 bath • 1011 ft²
3 bedroom semi-detached house for sale in Park Road, Hounslow, TW3 — £589,000 • 3 bed • 1 bath • 1012 ft²
3 bedroom semi-detached house for sale in Avenue Crescent, Cranford, TW5 — £540,000 • 3 bed • 1 bath • 883 ft²
2 bedroom semi-detached house for sale in Grove Road, Hounslow, TW3 — £440,000 • 2 bed • 1 bath • 701 ft²
5 bedroom semi-detached house for sale in Great South West Road, Hounslow, TW4 — £770,000 • 5 bed • 3 bath • 2040 ft²














































































