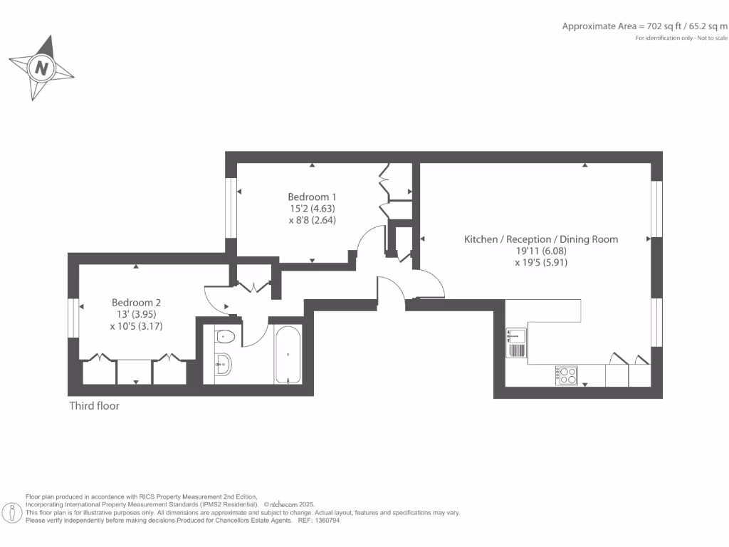
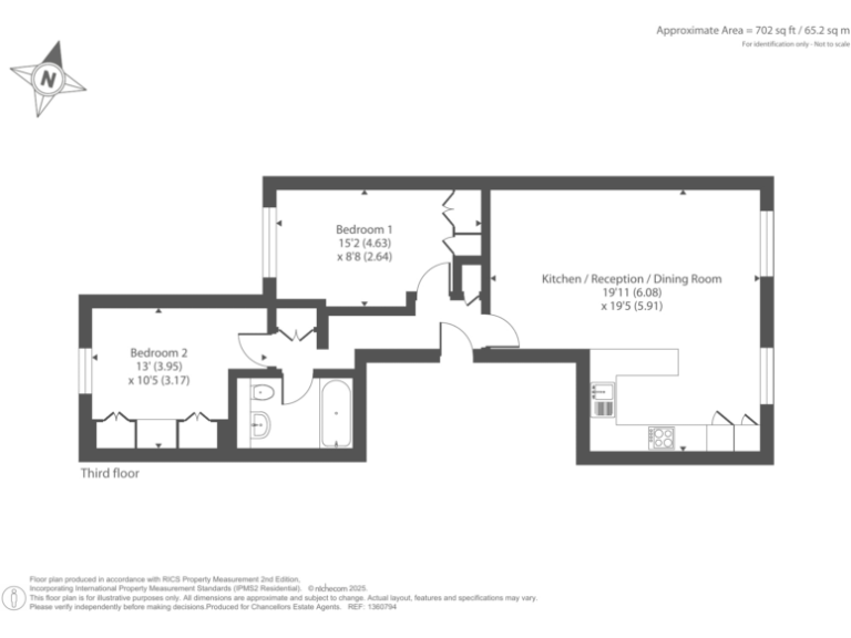
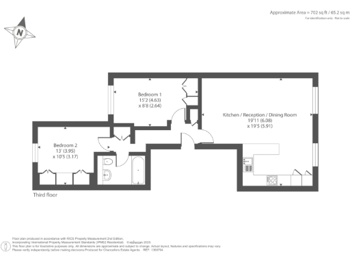
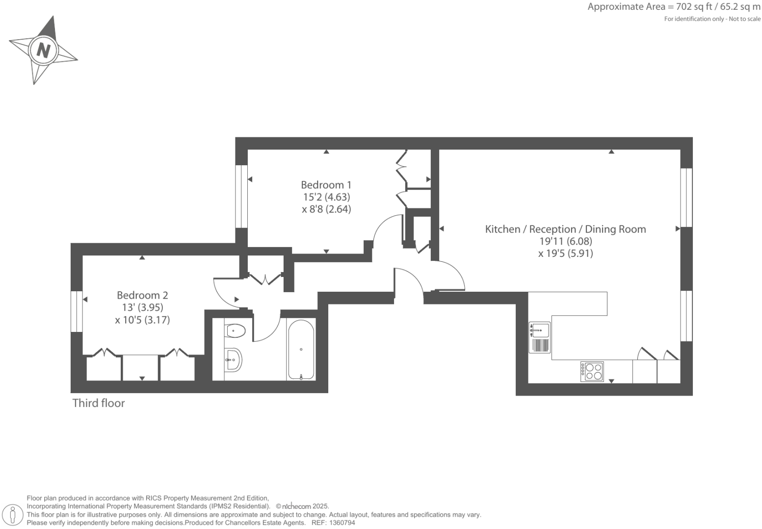
Bright, newly refurbished third-floor home minutes from Hyde Park.
- Share of freehold; 999-year lease from 01/01/2018
- Two double bedrooms; one bathroom
- Large reception with high ceilings and lots of light
- Separate modern kitchen and contemporary bathroom fittings
- Newly refurbished throughout; ready to occupy or let
- Annual service charge approx £2,500; council tax expensive
- Third-floor position (no lift mentioned) may affect access
- Local crime rated above average; insulation assumed absent
A bright, recently refurbished two-bedroom apartment set on the third floor of a Victorian mid-terrace on Linden Gardens. High ceilings and large windows give the principal reception an airy feel, while modern kitchen and bathroom fittings keep the finish contemporary.
The flat carries a long lease (999 years from 2018) with a share of freehold and reasonable communal management. Annual service charge is about £2,500; council tax is listed as expensive. Heating is by mains gas boiler and radiators.
This property suits buyers seeking a central Kensington/Notting Hill location close to Hyde Park and excellent local amenities, or investors after a well-presented lettable flat. Note the third-floor location (no lift indicated), an above-average local crime score and assumed lack of wall insulation — all factors to consider when budgeting for comfort upgrades.
1 bedroom flat for sale in Linden Gardens, Notting Hill, W2 — £625,000 • 1 bed • 1 bath • 425 ft²
2 bedroom flat for sale in Linden Gardens, Notting Hill, W2 — £1,500,000 • 2 bed • 2 bath • 976 ft²
2 bedroom apartment for sale in Linden Gardens, London, W2 — £1,650,000 • 2 bed • 2 bath • 1253 ft²
2 bedroom flat for sale in Linden Gardens, Notting Hill Gate, London, W2 — £750,000 • 2 bed • 1 bath • 647 ft²
2 bedroom flat for sale in Linden Gardens,
Notting Hill Gate, W2 — £750,000 • 2 bed • 2 bath • 835 ft²
1 bedroom apartment for sale in Linden Gardens, London, W2 — £695,000 • 1 bed • 1 bath • 486 ft²






















































