Ideal multigenerational living minutes from North Cornwall coast and village facilities.
Five double bedrooms and four bathrooms, three en-suite
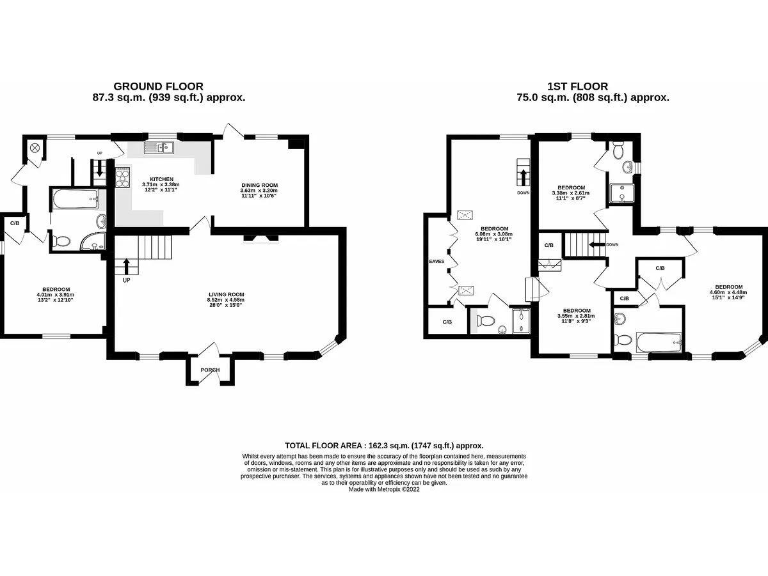
Set in the historic village of St Teath, Park View is a spacious Victorian stone house that blends period character with practical family living. The house offers five double bedrooms and four bathrooms, including a ground-floor bedroom with its own access — useful as an annexe or multigenerational suite. The open-plan kitchen/dining room opens to a private, enclosed garden and a sunny patio ideal for family meals and outdoor play.
Interior features such as exposed beams, sash windows and thick granite walls give the home strong character and a solid feel. Three en-suite bathrooms and a separate sitting room add flexibility for families or guests. The property is arranged over two floors and extends to about 1,747 sq ft, providing comfortable living space without being overly large to maintain.
Practical considerations are clear: the EPC is rated E and heating is oil-fired via boiler and radiators, while the original stone walls are likely uninsulated. These facts point to planned running costs and the potential for targeted energy improvements. There is a single off-street parking space at the front and decent sized plot to the rear, but no exceptional long-range views.
Location is a genuine strength for those wanting rural village life with coastal access: local amenities sit close by and popular North Cornwall beaches are a short drive away. Good primary and secondary schools are within reach, making the house suitable for families seeking both community and countryside. Overall, the property offers strong period appeal, practical space for a growing or multigenerational household, and scope for energy and cosmetic upgrades.
2 bedroom bungalow for sale in Valley View, St. Teath, Bodmin, PL30 — £260,000 • 2 bed • 1 bath • 779 ft²
4 bedroom detached house for sale in Hill View, PL30 — £695,000 • 4 bed • 2 bath • 1535 ft²
4 bedroom detached house for sale in St Teath | Nr Wadebridge, PL30 — £1,375,000 • 4 bed • 2 bath • 2950 ft²
5 bedroom detached house for sale in Egloshayle Road, Wadebridge, Cornwall, PL27 — £800,000 • 5 bed • 4 bath • 2359 ft²
4 bedroom detached house for sale in Park Pennkarn, Delabole, Cornwall, PL33 — £420,000 • 4 bed • 3 bath • 1357 ft²
5 bedroom detached house for sale in St Teath, Wadebridge, PL30 — £800,000 • 5 bed • 2 bath • 2111 ft²






















































































